Закрыть галерею
Изображение 41 из 41

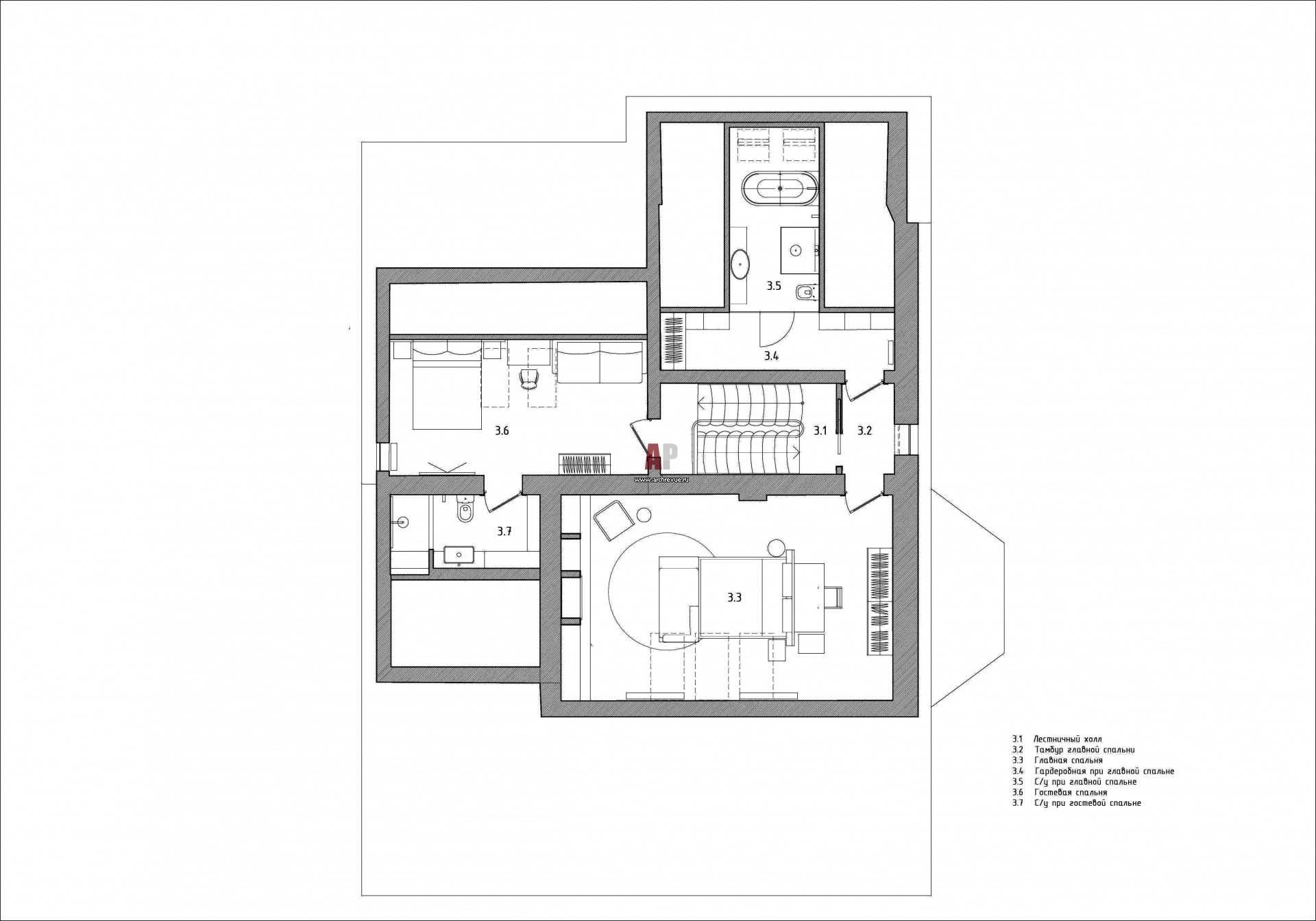
План мансардного этажа дома с мансардой. Общая площадь – 550 кв. м.

Планировка мансарды загородного дома. 

Проект: Современная классика. Двухэтажный дом с мансардой, природной палитрой и тактильными фактурами
Автор проекта: Исакова Валерия , Куркова Мария
Объект: Подмосковный дом в итальянском стиле
Общая площадь: 550 кв.м.