Закрыть галерею
Изображение 23 из 23

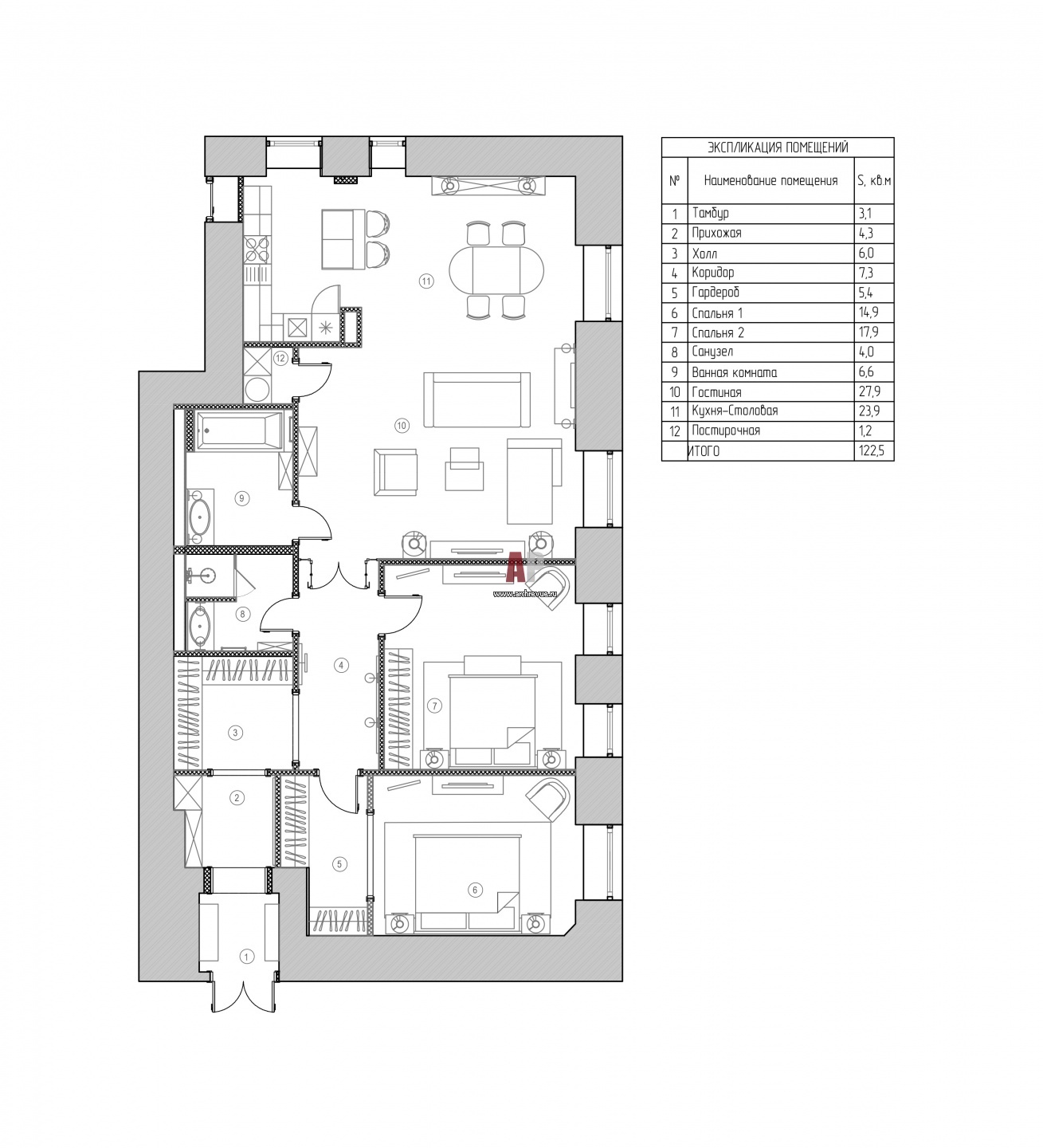
Планировка 3-х комнатной квартиры на Патриарших прудах, в доходных Волоцких домах.

План трехкомнатной квартиры в историческом доходном доме. Общая площадь – 122, 5 кв. м.

Проект: Парадная квартира в историческом доходном доме
Автор проекта: Сусекова Дарья
Объект: Классическая квартира на Патриарших прудах
Общая площадь: 122 кв.м.