Закрыть галерею
Изображение 25 из 25

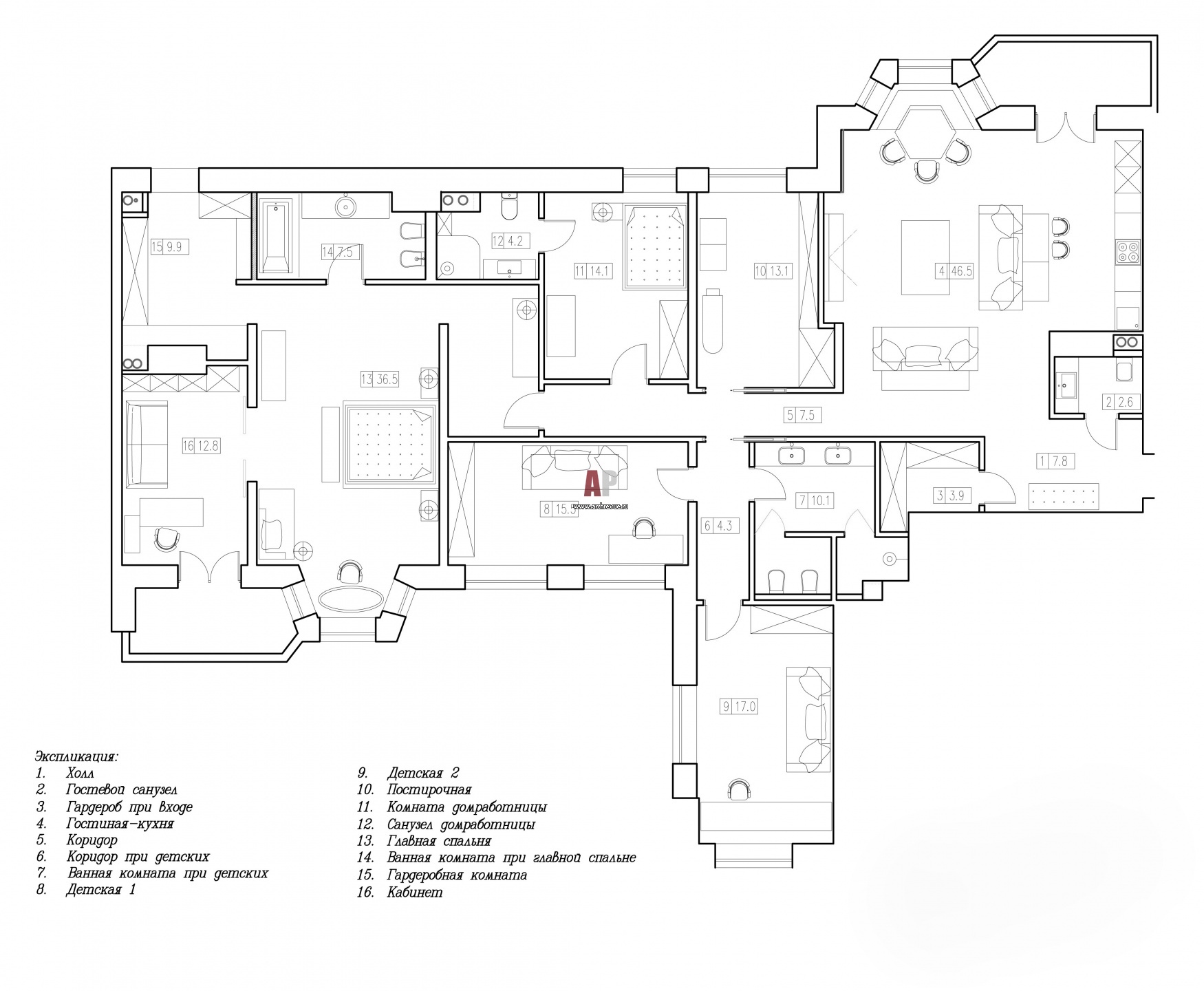
Планировка большой квартиры с четырьмя спальнями.

План семейной 5-ти комнатной квартиры на Мосфильмовской улице. Общая площадь – 200 кв. м.

Проект: Большая квартира с теплыми фактурами, монохромной палитрой и яркими акцентами
Автор проекта: Колесова Дарья
Объект: Комфортный интерьер для семейных встреч
Общая площадь: 200 кв.м.