Закрыть галерею
Изображение 26 из 27

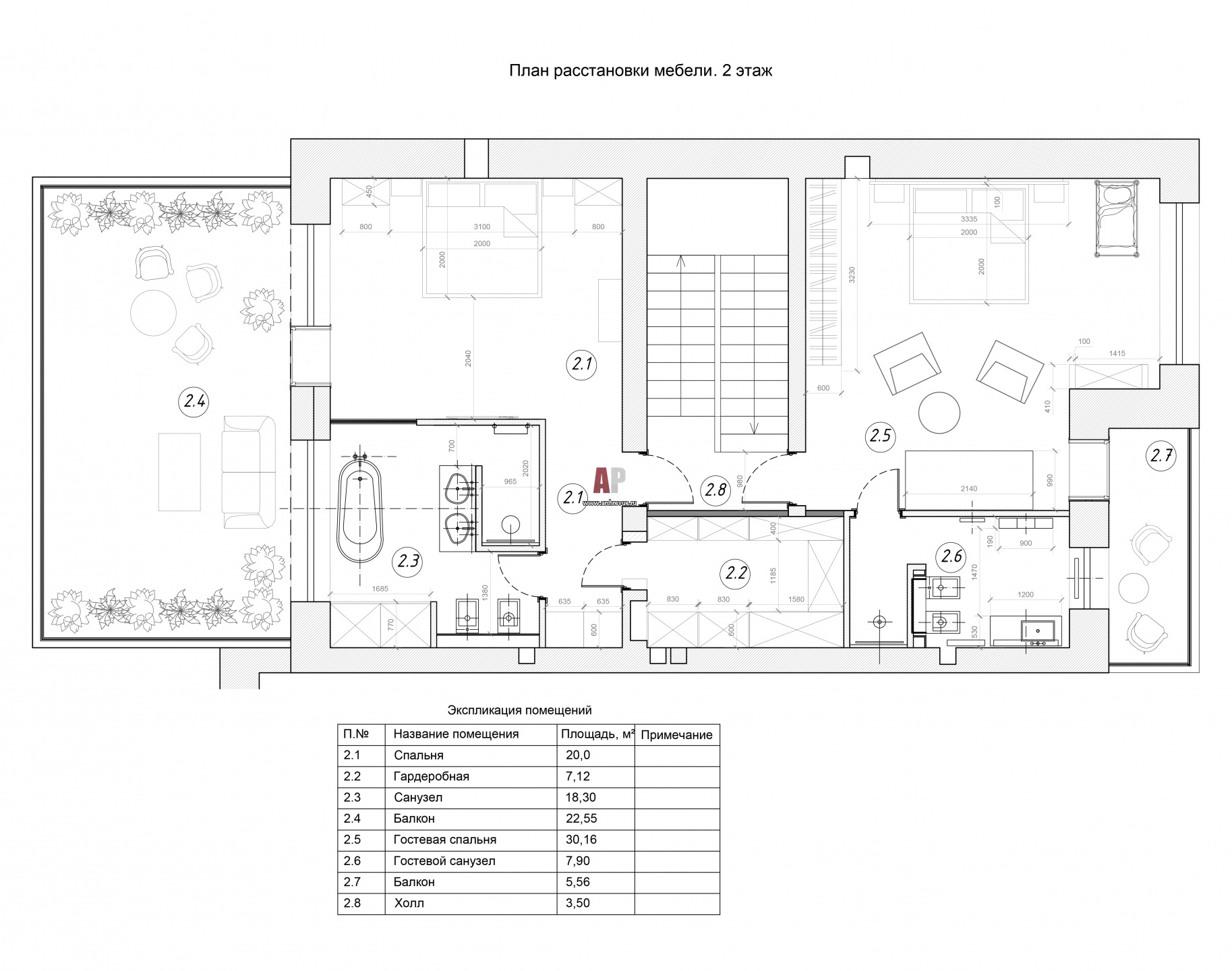
Планировка 2 этажа 3-х этажного дома для большой семьи из трех поколений.

План второго этажа трехэтажного таунхауса в Подмосковье. Общая площадь – 250 кв. м.

Проект: Интерьер трехэтажного таунхауса с элементами стиля лофт и этники
Автор проекта: Василькова Дарья
Объект: Таунхаус в стиле Южной Италии и Бали
Общая площадь: 250 кв.м.