Закрыть галерею
Изображение 10 из 10

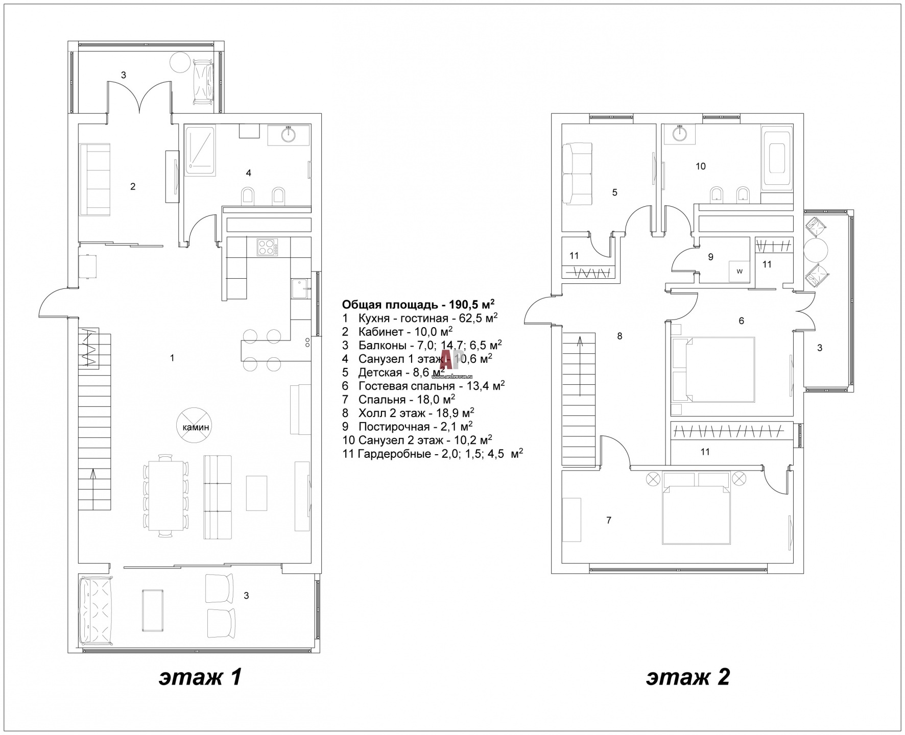
Поэтажная планировка 2-х этажной курортной квартиры с расстановкой мебели у моря.

План двухтаэной квартиры в Сочи. Общая площадь - 190, 5 кв. м.

Проект: Двухэтажная квартира в Сочи с камином
Автор проекта: Волкова Марина
Объект: Курортная квартира
Общая площадь: 190,5 кв.м.