Закрыть галерею
Изображение 25 из 26

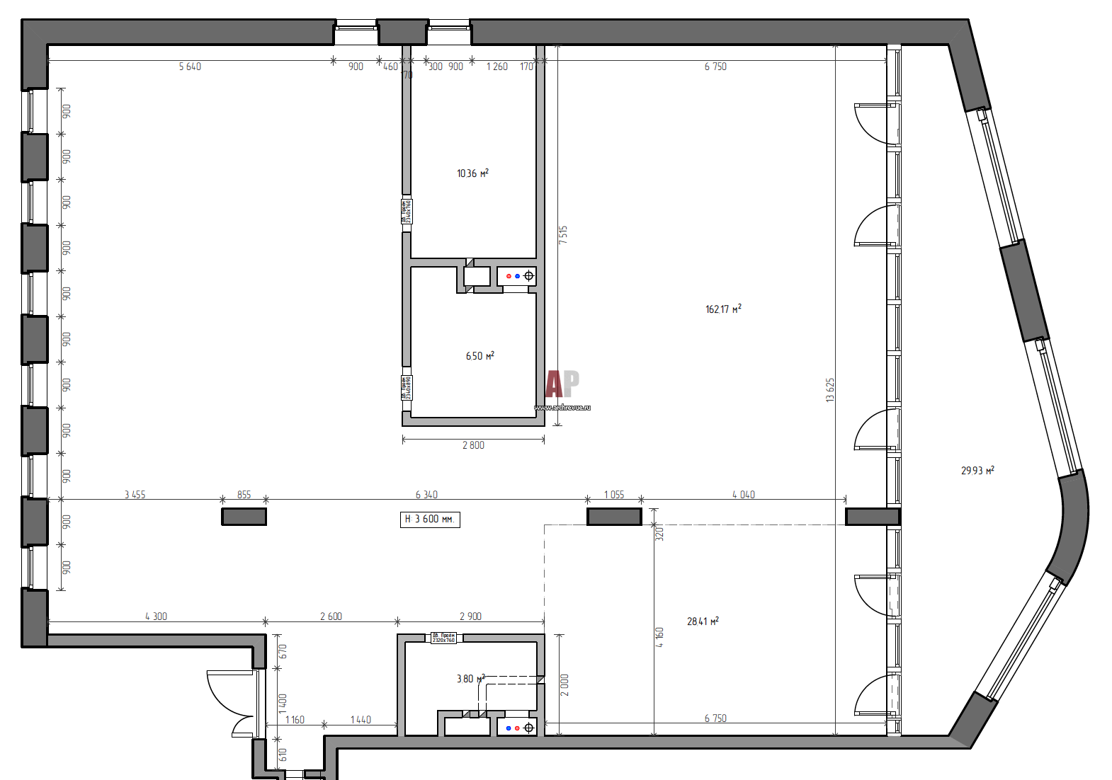
План семейной квартиры с четырьмя спальнями до перепланировки.

Обмерочный план видовой квартиры в ЖК «Кленовый дом». Общая площадь – 280 кв. м.

Проект: Интерьер панорамной квартиры с элементами минимализма, лофта и этно-стиля
Автор проекта: Чумаченко Артем
Объект: Технологичная квартира с современным дизайном
Общая площадь: 280 кв.м.