Закрыть галерею
Изображение 18 из 18

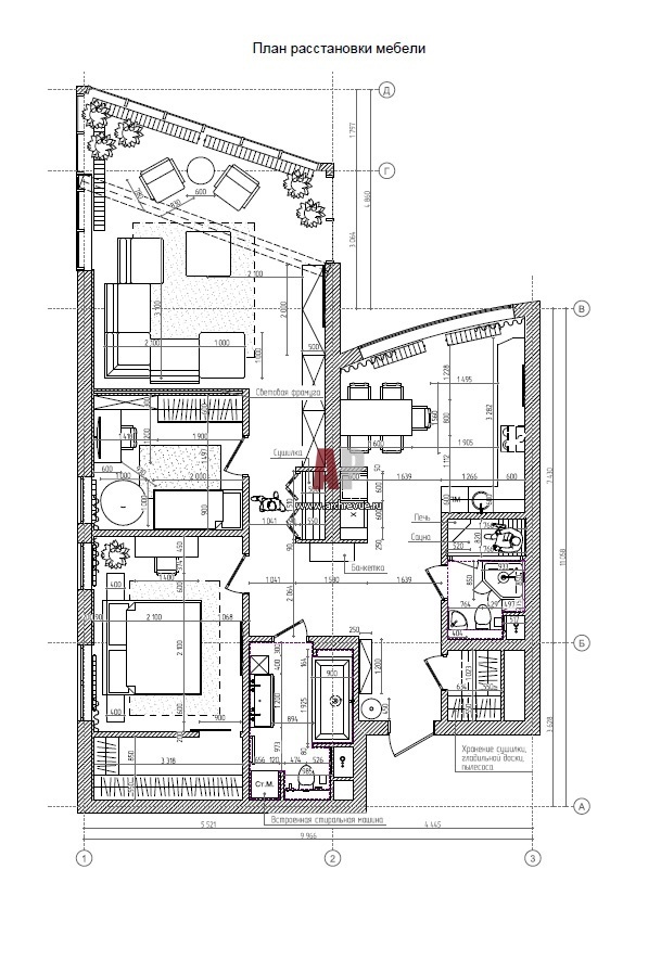
Квартира со сложной планировкой и панорамным окном после перепланировки.

План 3-х комнатной квартиры с расстановкой мебели в ЖК «Олимпийская Деревня Новогорск». Общая площадь – 112 кв. м.

Проект: Квартира в Новогорске с оранжерейным остеклением в гостиной
Автор проекта: Подъячева Марина
Объект: Квартира с зимним садом в Подмосковье
Общая площадь: 112 кв.м.