Закрыть галерею
Изображение 26 из 26

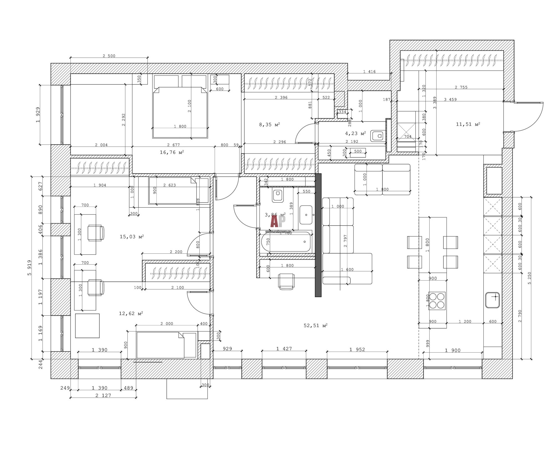
Перепланировка 4-х комнатной квартиры в новостройке на Севере Москвы.

План четырехкомнатной квартиры для семьи с детьми. Общая площадь – 125 кв. м.

Проект: Актуальный городской интерьер для семьи
Автор проекта: Иванова Ксения
Объект: Бетонная квартира на Севере Москвы
Общая площадь: 125 кв.м.