Закрыть галерею
Изображение 17 из 17

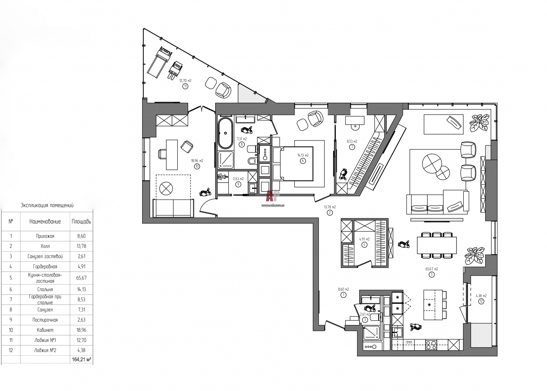
План трехкомнатной квартиры в ЖК «Дыхание». Общая площадь – 167 кв. м

Планировка 3-х комнатной квартиры со скошенной несущей стеной в новостройке. 

Проект: Брутальная квартира в ЖК «Дыхание» для молодой девушки
Автор проекта: Дурава Екатерина
Объект: Черная квартира в стиле софт-минимализм
Общая площадь: 167 кв.м.