Закрыть галерею
Изображение 17 из 17

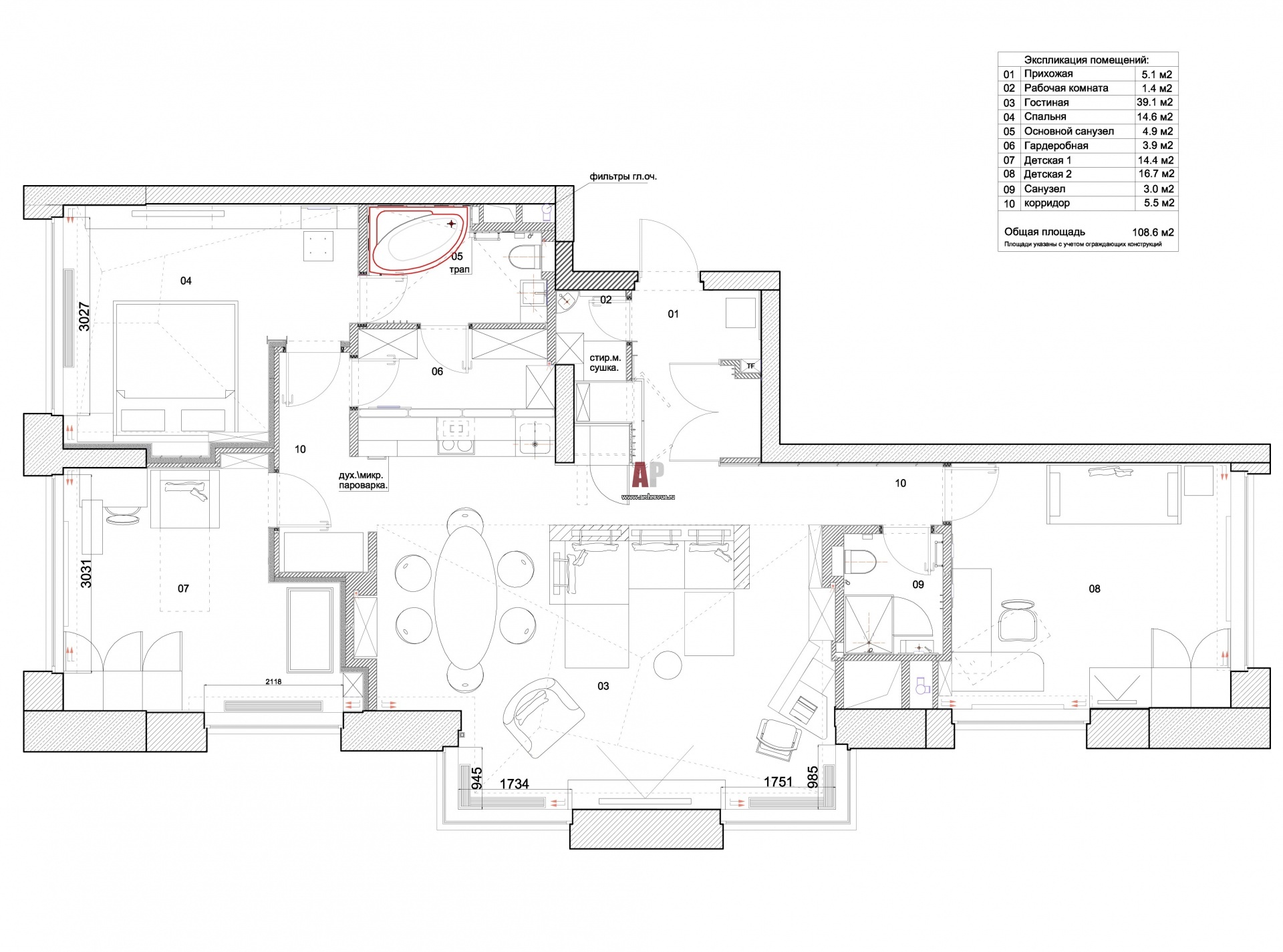
Планировка компактной квартиры с тремя спальнями.

План современной квартиры с двумя детскими. Общая площадь - 108, 6 кв. м.

Проект: Небольшая трехкомнатная квартира в современном стиле
Автор проекта: Смирнова Татьяна
Соавтор(ы): Литвиненко Антонина
Объект: Модернистская квартира для семьи
Общая площадь: 107 кв.м.