Закрыть галерею
Изображение 23 из 23

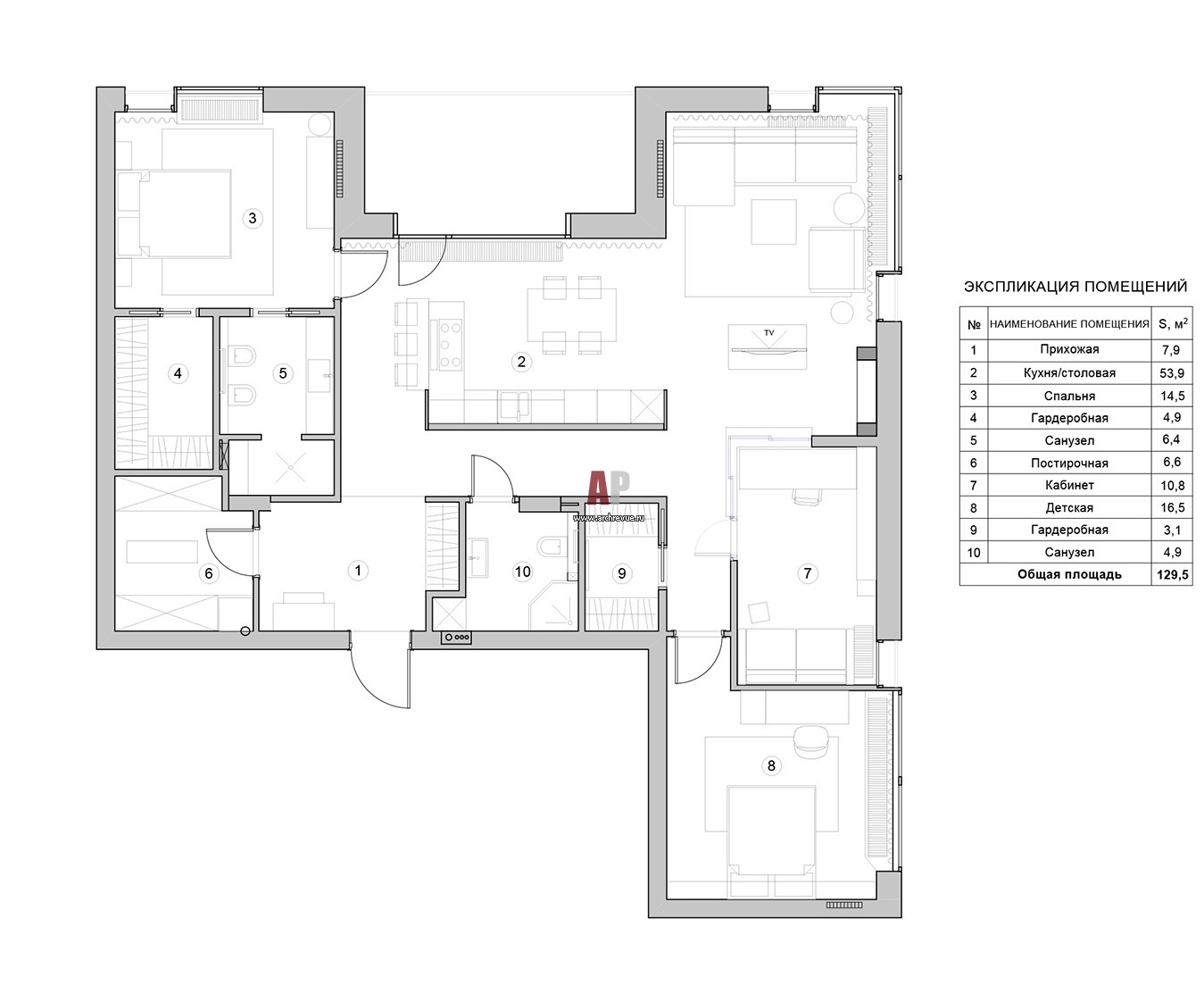
Планировка 4-х комнатной квартиры с общей гостиной.

План четырехкомнатной квартиры в современном стиле. Общая площадь - 147,8 кв. м.

Проект: Интерьер подмосковной квартиры с функциональным дизайном и сложной технической начинкой
Автор проекта: Стрелюк Алексей
Объект: Функциональная квартира для семьи
Общая площадь: 147,8 кв.м.