Закрыть галерею
Изображение 30 из 30

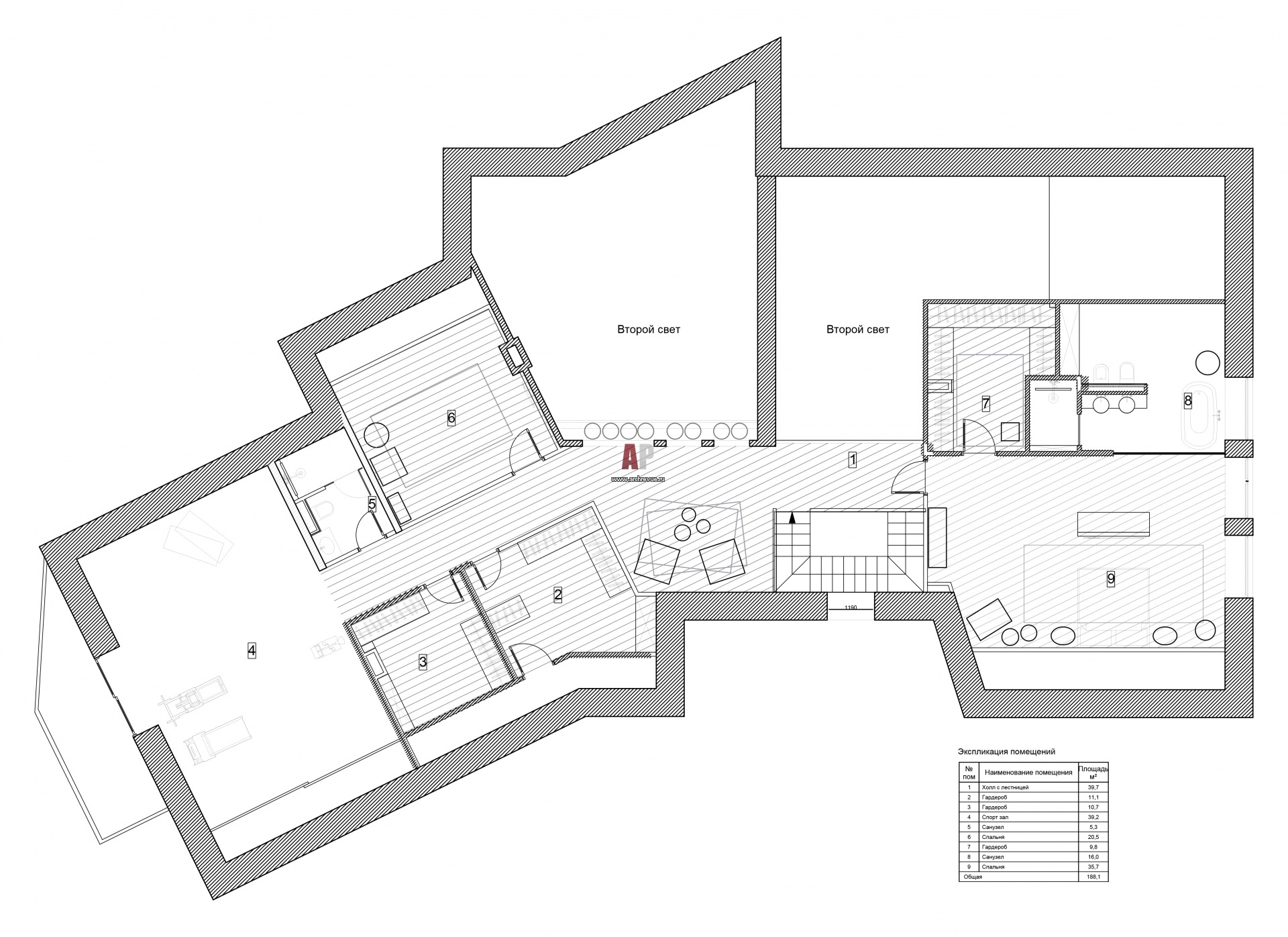
Планировка 2 этажа 2х этажного дома в поселке Борки.

План втрого этажа двухэтажного дома со сложной планировкой. Общая площадь – 600 кв. м.

Проект: Интерьер двухэтажного дома в Борках со сложной архитектурой
Автор проекта: Василькова Дарья
Объект: Эклектичное шале в Подмосковье
Общая площадь: 600 кв.м.