Закрыть галерею
Изображение 32 из 33

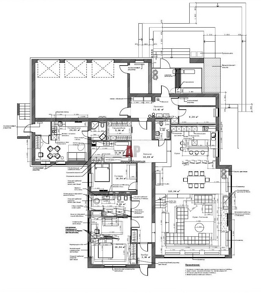
Планировка 1 этажа 2-х этажного современного дома с панорамными окнами и вторым светом.

План первого этажа двухэтажного дома в стиле минимализм под Новосибирском. Общая площадь – 470 кв. м.

Проект: Белый минимализм. Монохромный двухэтажный дом для семьи с четырьмя детьми
Автор проекта: Иванова Ксения
Соавтор(ы): Поцелуев Иван
Объект: Минималистичный дом в пригороде Новосибирска
Общая площадь: 470 кв.м.