Закрыть галерею
Изображение 35 из 35

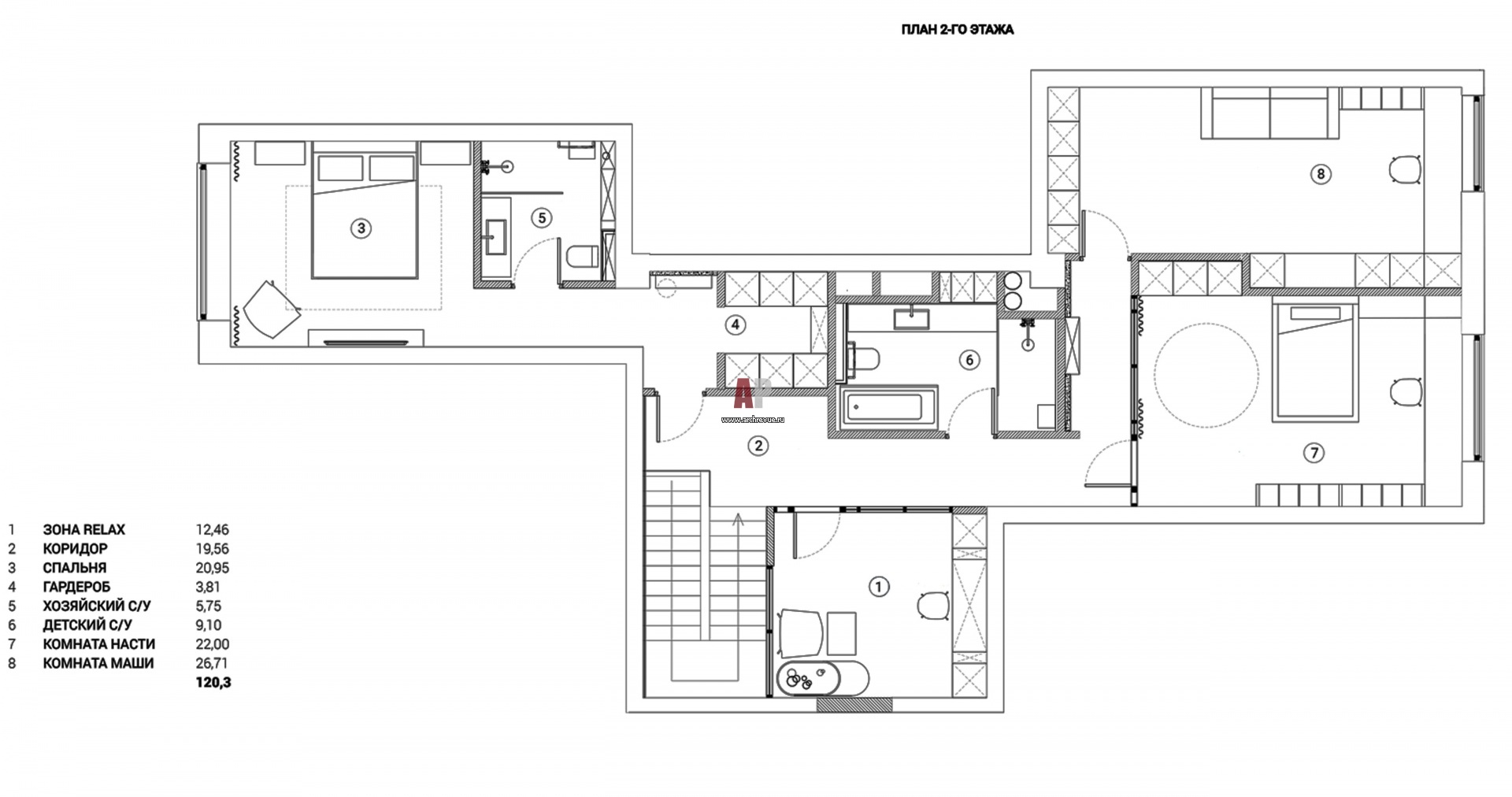
Планировка 2 этажа 2-х этажной квартиры с тремя санузлами в Хамовниках.

План второго этажа двухэтажной квартиры в ЖК Knightsbridge Private Park. Общая площадь – 200 кв. м.

Проект: Лаконичный интерьер для семьи с двумя детьми в комплексе Knightsbridge Private Park
Автор проекта: Шилова Евгения, Ерошевич Илья
Объект: Современная двухэтажная квартира в Хамовниках
Общая площадь: 200 кв.м.