Закрыть галерею
Изображение 28 из 28

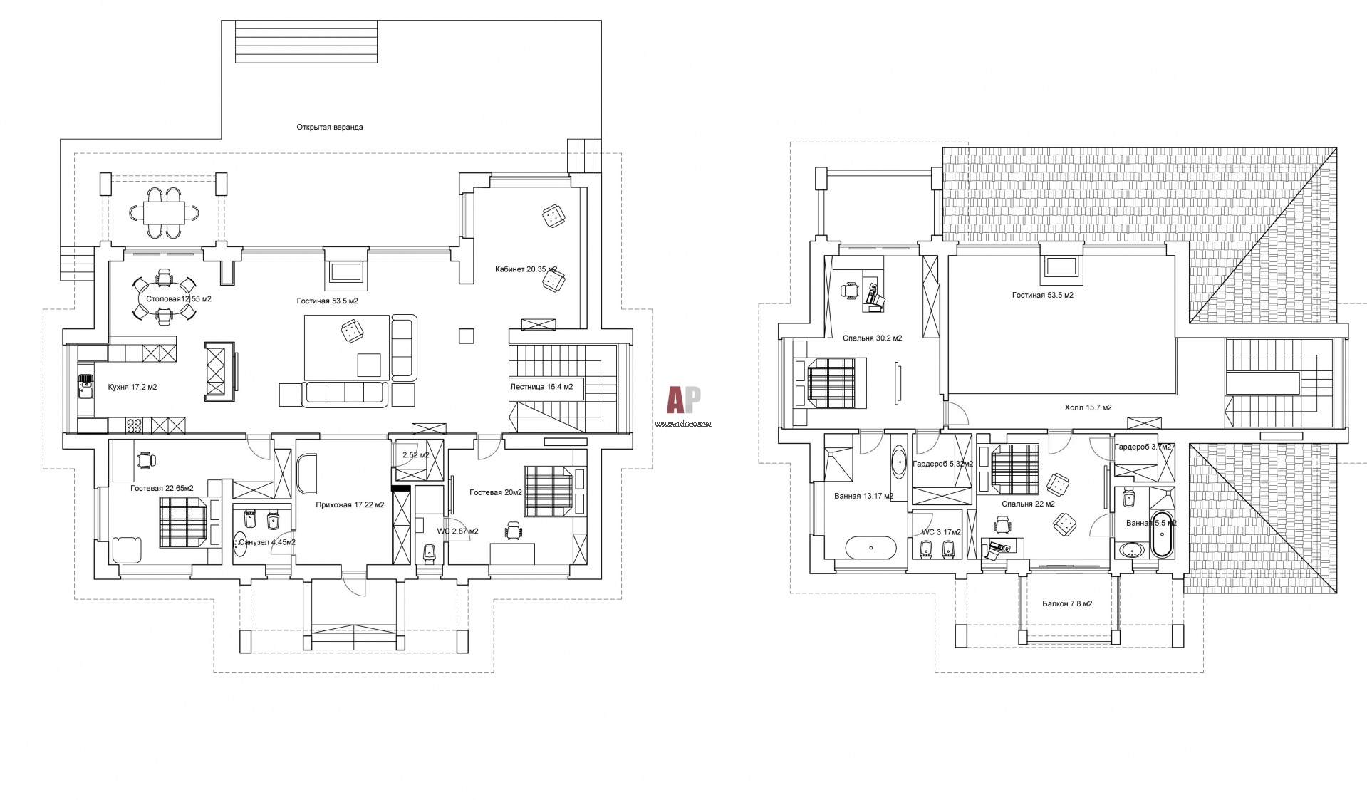
Планировка 1 и 2 этажа 2-х этажного дома, построенного по индивидуальному проекту.

План первого и второго этажа двухэтажного дома для отдыха у реки. Общая площадь – 370 кв. м.

Проект: Интерьер двухэтажного загородного дома с речной панорамой
Автор проекта: Разоренов Алексей
Объект: Дом на Волге в яхтенном стиле
Общая площадь: 370 кв.м.