Закрыть галерею
Изображение 14 из 14

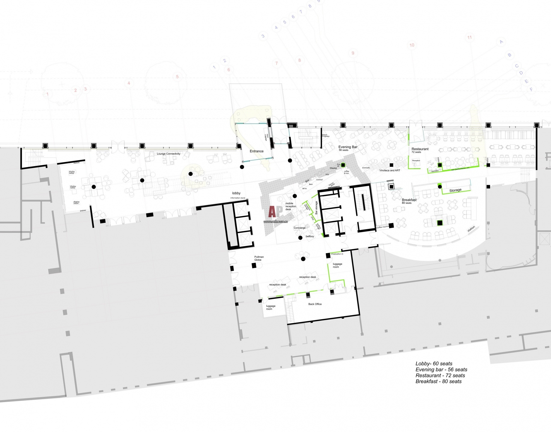
Площадь реновации общественных зон отеля составила более 1000 кв. м.

План первого этажа вестибюля и общественных зон отеля Pullman Schweizerhof в Берлине.

Проект: Интерьеры отеля Pullman Berlin Schweizerhof в стиле Баухаус
Автор проекта: Сундукова Ирина, Сундукова Ольга
Объект: Авангардный отель с арт-объектами в Берлине
Общая площадь: 1096 кв.м.