Закрыть галерею
Изображение 25 из 25

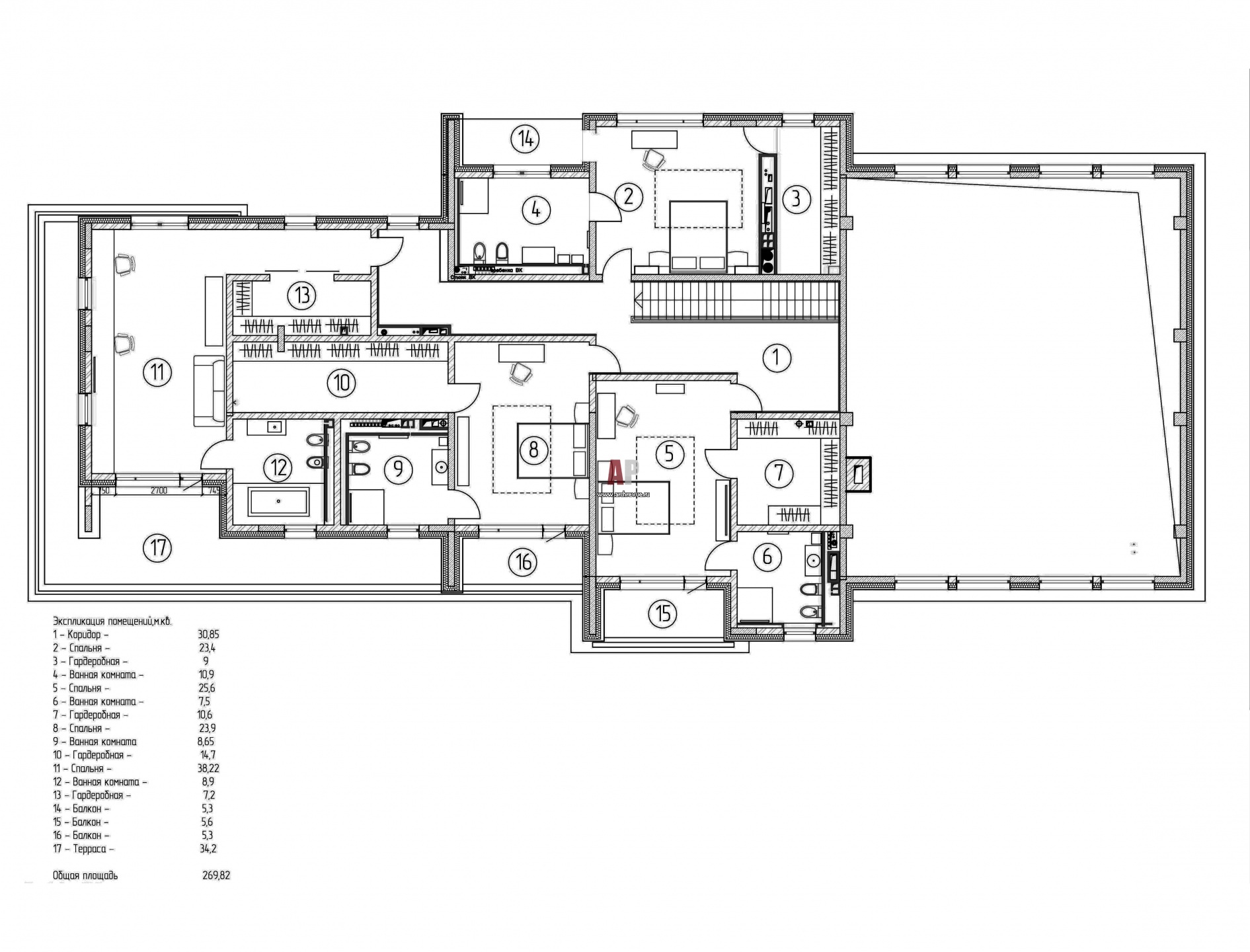
Планировка 2 этажа 2-этажного дома в стиле современное шале.

План второго этажа двуэтажного дома в Переделкино. Общая площадь – 700 кв. м.

Проект: Интерьер минималистичного шале в Подмосковье
Автор проекта: Григорьев Дмитрий, Григорьева Дарья
Объект: Современное шале в Переделкино
Общая площадь: 700 кв.м.