Закрыть галерею
Изображение 29 из 29

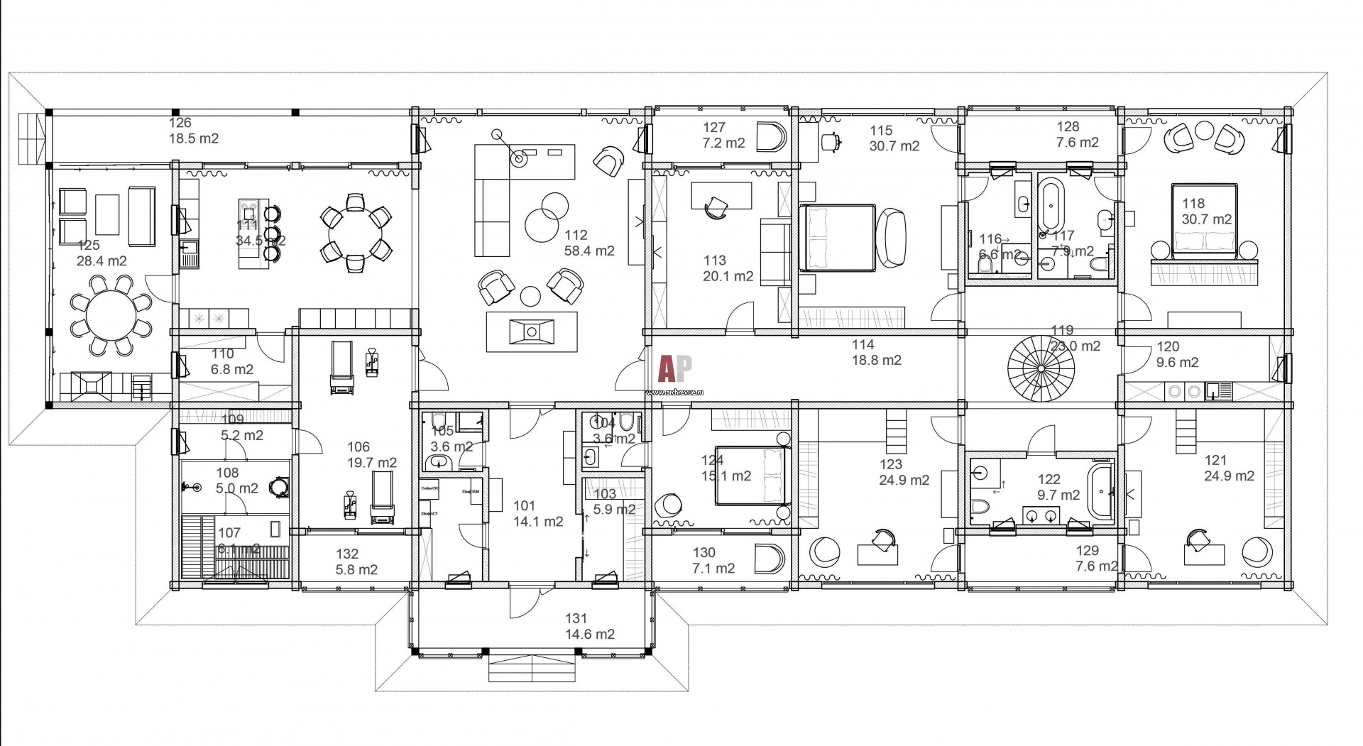
План одноэтажного деревянного дома, построенного по индивидуальному проекту.

Планировка 1-этажного дома из клееного бруса. Общая площадь – 550 кв. м. 

Проект: Деревянный дом в заповедной зоне Подмосковья
Автор проекта: Коровина Ксения , Закурдаева Екатерина
Объект: Дом для трех поколений семьи
Общая площадь: 550 кв.м.