Закрыть галерею
Изображение 25 из 25

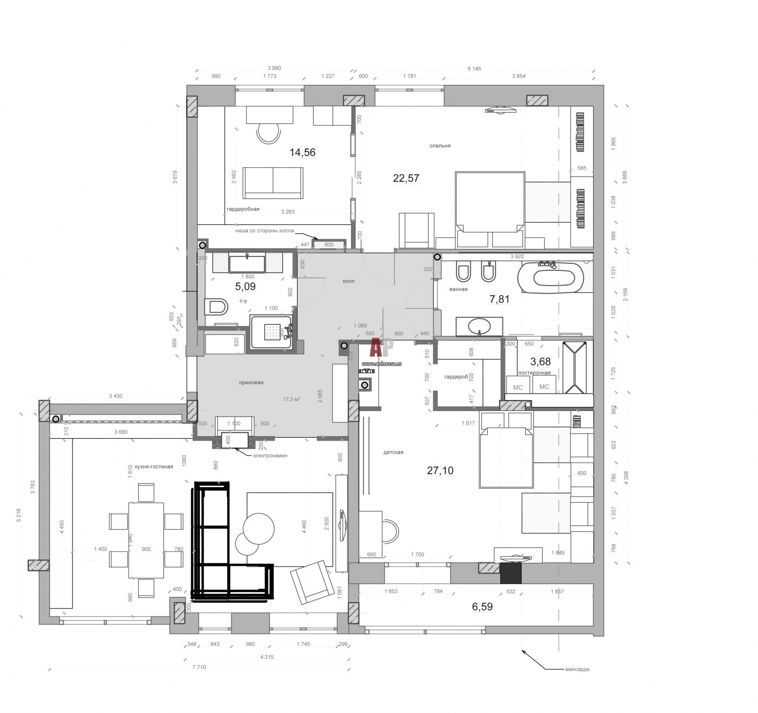
Планировка трехкомнатной квартиры, созданной в результате объединения соседних «однушки» и «трешки».

План объединенных одно и трехкомнатной квартир. Общая площадь – 123 кв. м.

Проект: Пыльная роза. Интерьер квартиры для семьи с хорошим вкусом
Автор проекта: Гордеева Надежда
Объект: Квартира с элементами ар-деко в Перми
Общая площадь: 123 кв.м.