Закрыть галерею
Изображение 19 из 19

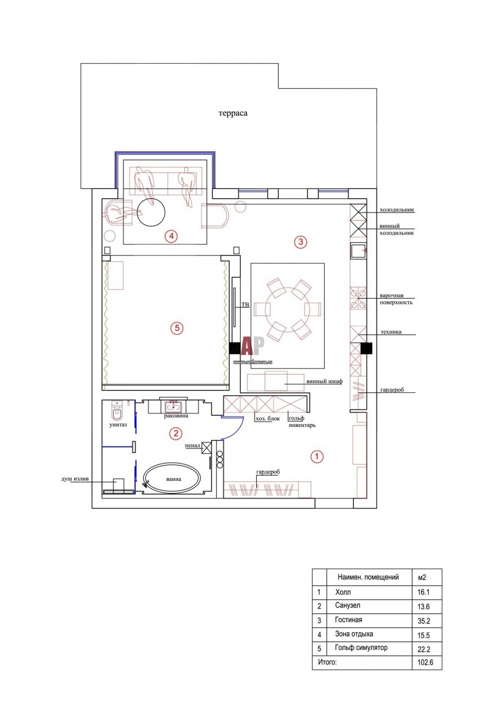
Планировка студийной квартиры для игры в гольф и отдыха.

План квартиры-студии в ЖК Diadema Club House, Санкт-Петербург. Общая площадь – 103 кв. м.

Проект: Интерьер квартиры-студии в стиле ар-деко для отдыха
Автор проекта: Воробьева Ольга
Объект: Гостевая квартира с мини-гольфом
Общая площадь: 103 кв.м.