Закрыть галерею
Изображение 19 из 19

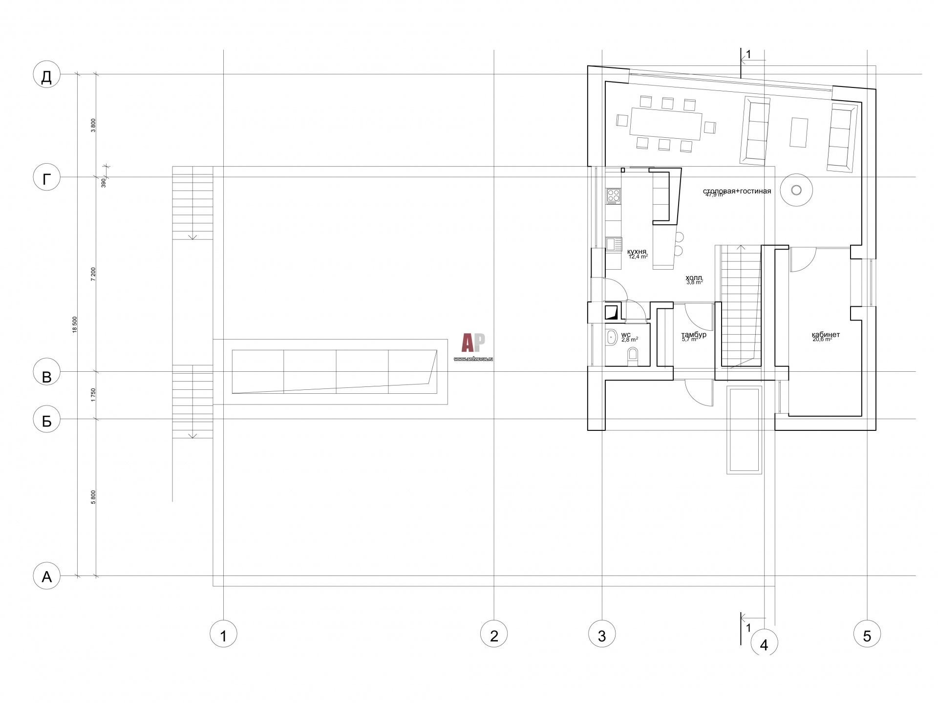
Планировка 2 этажа 2-х этажного дома. Общественный этаж расположен на верхнем уровне.

План второго этажа двухэтажного дома с холме. Общая площадь - 450, 3 кв. м.

Проект: Дом в минимализме
Автор проекта: Борисенко Арсений, Зайцев Петр
Объект: Дом в горе для молодой семьи
Общая площадь: 450,3 кв.м.