Закрыть галерею
Изображение 27 из 27

План мансарды 2-х этажной квартиры в дореволюционном доме.

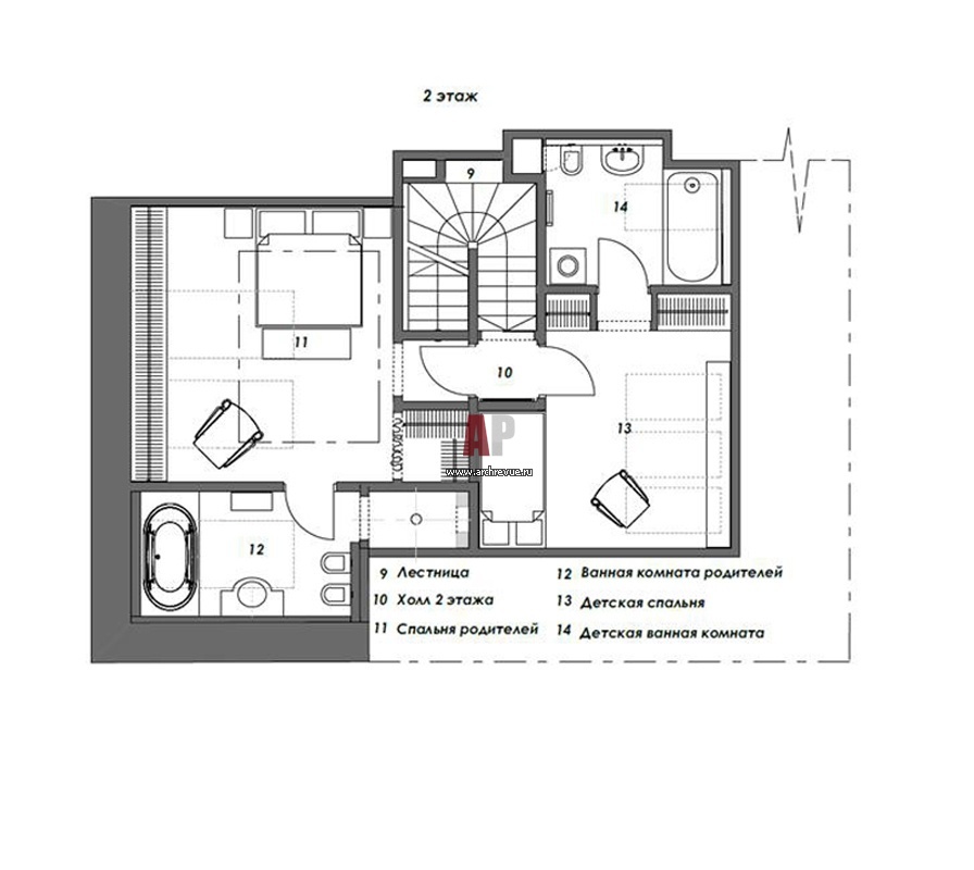
План второго этажа двухэтажной квартиры с мансардой на Патриарших прудах. Общая площадь - 154 кв. м.

Проект: Интерьер двухэтажной квартиры в тихом центре Москвы
Автор проекта: Зольтманн Инна
Объект: Квартира с мансардой на Патриарших прудах
Общая площадь: 154 кв.м.