Закрыть галерею
Изображение 20 из 20

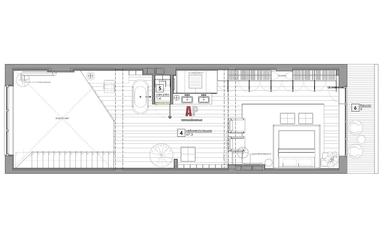
План 2 этажа 4-х этажного семейного лофта. Общая площадь - 120 кв. м.

Планировка второго этажа многоэтажного лофта в комплексе апартаментов Manhattan House на Верхней Масловке.

Проект: Четырехэтажный лофт на Верхней Масловке
Автор проекта: Недоборов Евгений
Соавтор(ы): Недоборов Денис, Колесников Игорь, Гатауллина Елена
Объект: Лофт-апартаменты в американском стиле
Общая площадь: 120 кв.м.