Закрыть галерею
Изображение 35 из 35

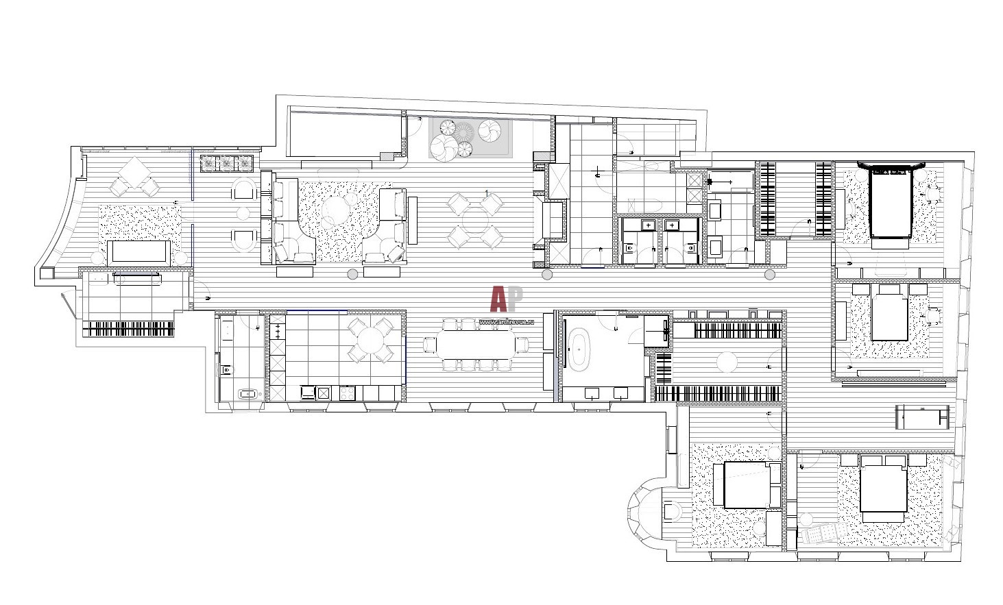
План большой семейной квартиры на Якиманской набережной. Общая площадь – 350 кв. м.

Планировка квартиры для семьи с детьми в ЖК «Голутвинская слобода». 

Проект: Рациональный минимализм. Интерьер большой квартиры в ЖК «Голутвинская слобода»
Автор проекта: Сальберг-Вачнадзе Оксана
Соавтор(ы): Чесалина Ольга, Сошкина Мария
Объект: Монохромная квартира с фактурой камня
Общая площадь: 350 кв.м.