Закрыть галерею
Изображение 31 из 32

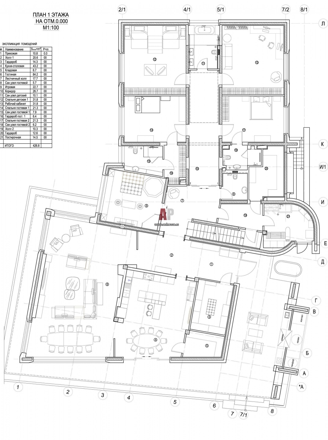
Планировка 1 этажа 2-х этажного семейного дома в Алма-Ате.

План первого этажа двухэтажного дома со сложной геометрией и наклонными потолками. Общая площадь: 520 кв. м.

Проект: Двухэтажный дом с ажурными перегородками из латуни для семьи с тремя детьми
Автор проекта: Малыгина Яна, Солнцева Юлия
Объект: Современный дом с эко-дизайном в Алма-Ате
Общая площадь: 520 кв.м.