Закрыть галерею
Изображение 17 из 19

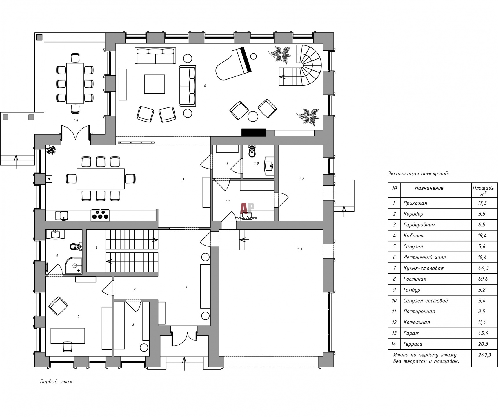
Планировка 1 этажа 2-х этажного дома с эксплуатируемым цоколем площадью 600 кв. м.

План первого этажа современного дома с панорамными окнами. Общая площадь – 600 кв. м.

Проект: Современный дом в серо-голубой гамме
Автор проекта: Нагаева Алена, Минчева Елена
Объект: Дом на холме
Общая площадь: 600 кв.м.