Закрыть галерею
Изображение 22 из 24

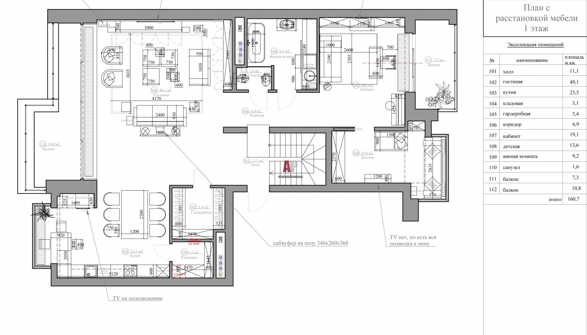
Планировка 1 этажа 3-х этажной квартиры в современной высотке.

План первого этажа трехэтажного пентхауса с верандой на крыше. Общая площадь – 300 кв. м.

Проект: Интерьер пентхауса с ажурными восточными перегородками
Автор проекта: Ситникова Олеся
Объект: Трехэтажный пентхаус в московской высотке
Общая площадь: 300 кв.м.