Закрыть галерею
Изображение 18 из 18

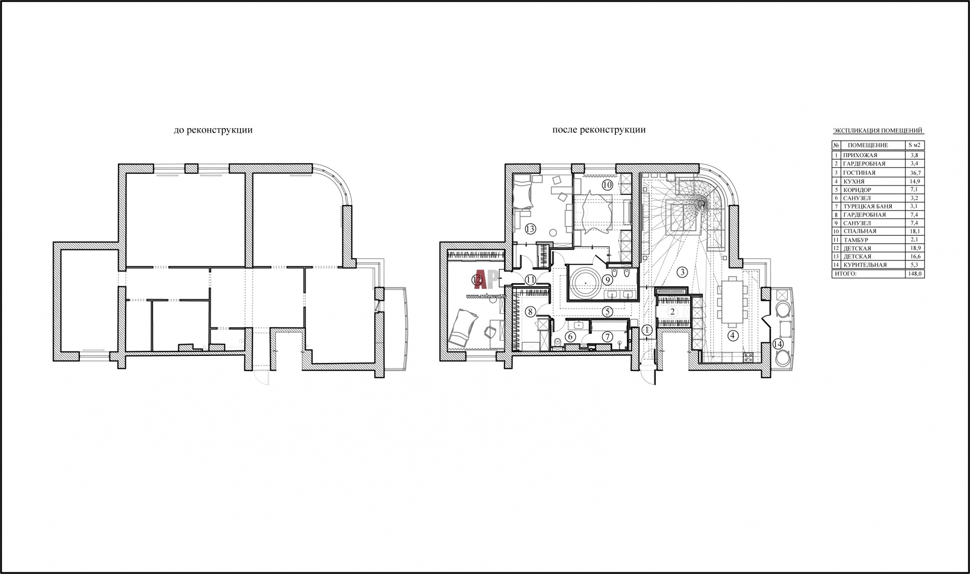
Планировка квартиры в современном стиле площадью 160 кв. м до и после реконструкции.

План квартиры 160 кв. м с большой гостиной, двумя детскими и банным комплексом до и после перепланировки.

Проект: Семейная квартира в стиле хай-тек
Автор проекта: Беляевская Анна, Сморгонская Наталия
Объект: Внутри Шуховской башни
Общая площадь: 160 кв.м.