Закрыть галерею
Изображение 19 из 20

Исходная планировка квартиры с двумя спальнями в панорамной высотке.

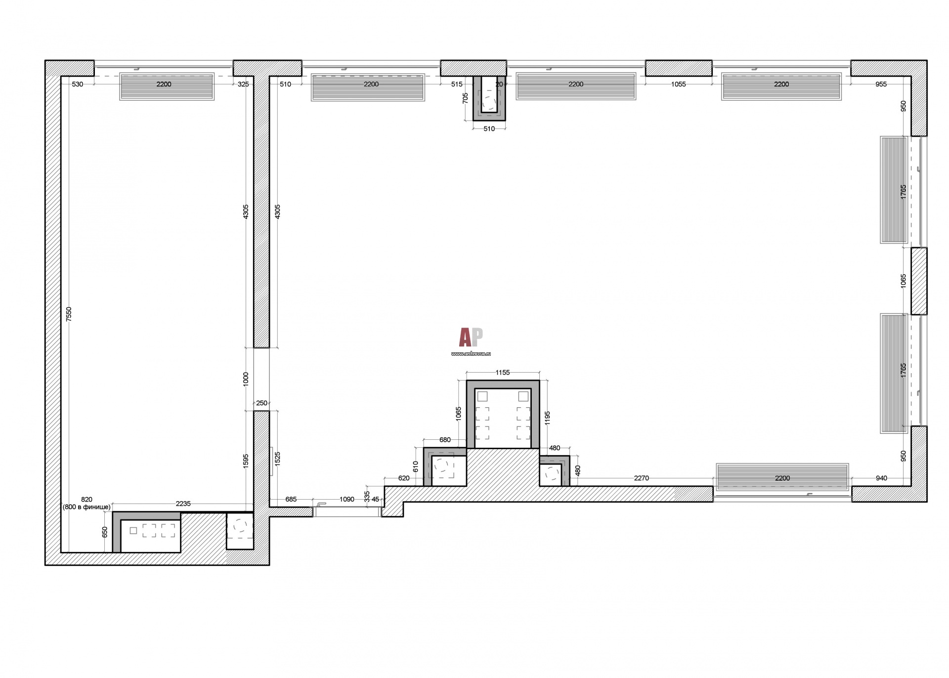
Обмерный план квартиры в ЖК «Пресня Сити». Общая площадь – 83 кв. м.

Проект: Интерьер на 42 этаже. Транзитная квартира для двоих в ЖК «Песня Сити»
Автор проекта: Короткина Оксана
Соавтор(ы): Копытина Юлия
Объект: Невесомая квартира цвета неба
Общая площадь: 83 кв.м.