Закрыть галерею
Изображение 22 из 22

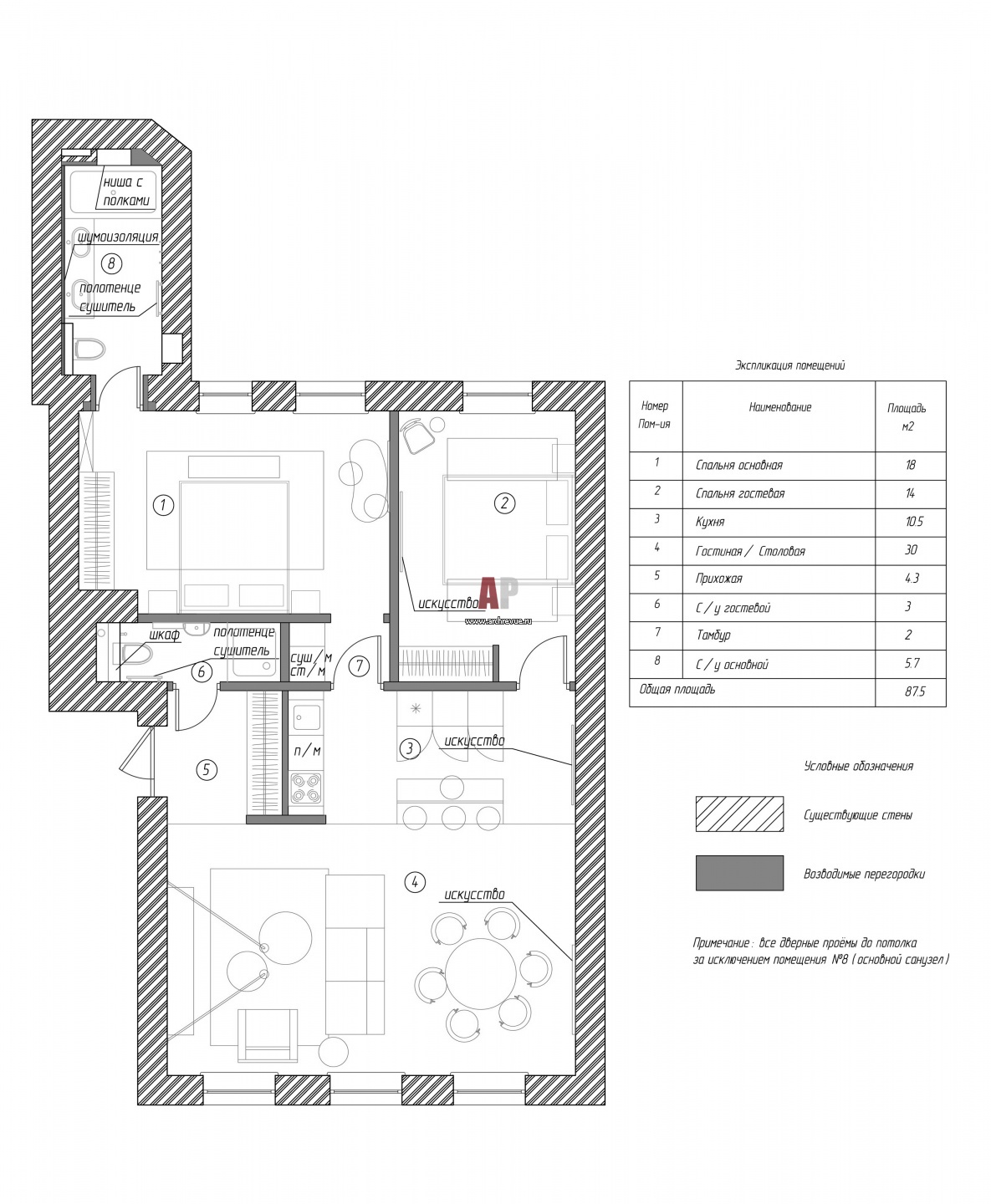
Планировка квартиры с двумя спальнями и общей гостиной в дореволюционном доме.

План трехкомнатной квартиры для временных визитов в Москву. Общая площадь – 90 кв. м.

Проект: Минималистская квартира на Патриарших прудах
Автор проекта: Федорова Екатерина
Объект: Московская квартира в стиле Баухаус
Общая площадь: 90 кв.м.