Закрыть галерею
Изображение 21 из 21

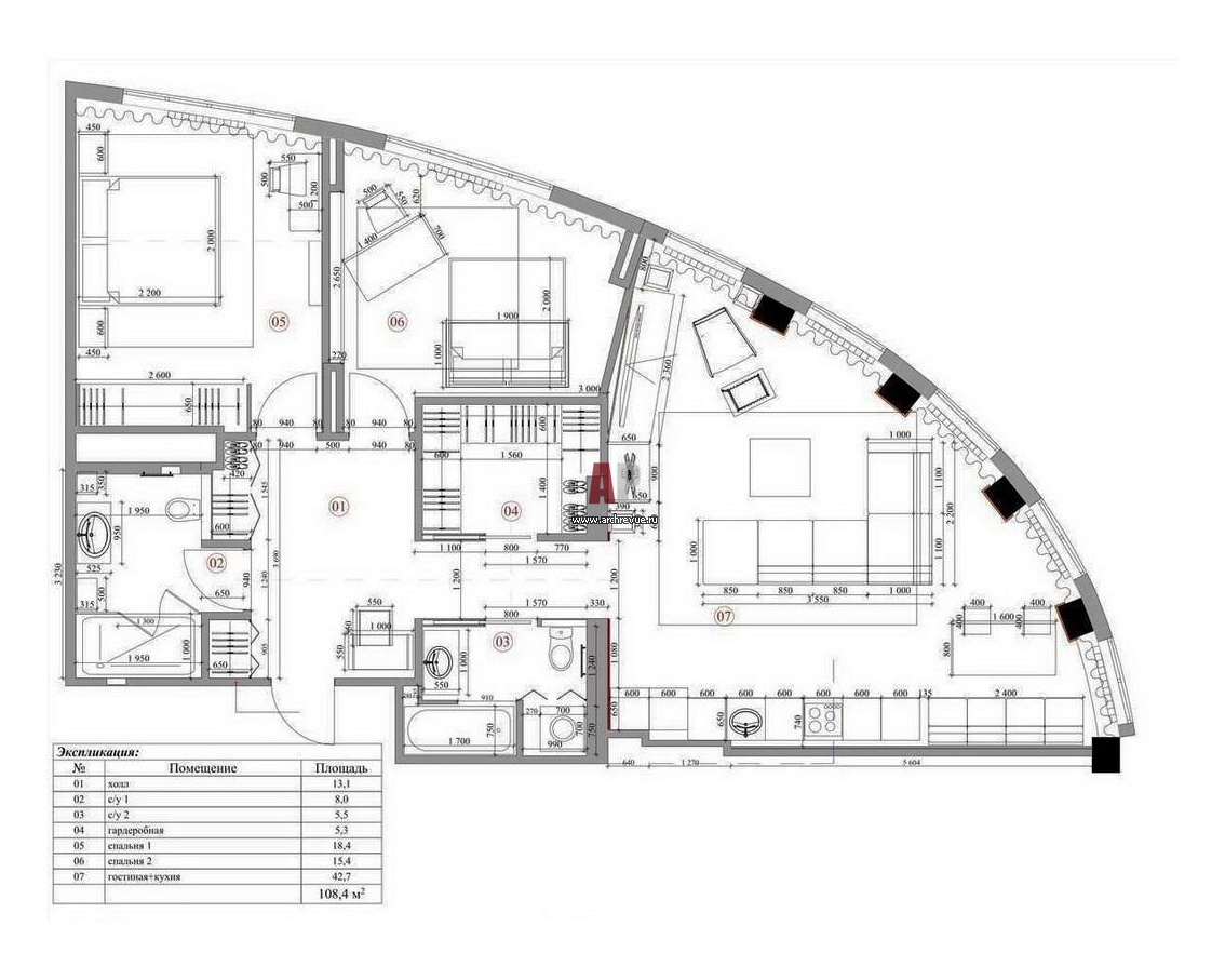
Планировка мужской квартиры с радиусной фасадной стеной.

План 3-х комнатной квартиры площадью 108 кв. м в новом монолитном жилом доме.

Проект: Мужской интерьер с морской тематикой, тиком и трендовой мебелью
Автор проекта: Рыкова Анастасия
Соавтор(ы): Божинская Анастасия
Объект: Квартира для холостяка в Москве
Общая площадь: 108 кв.м.