Закрыть галерею
Изображение 21 из 22

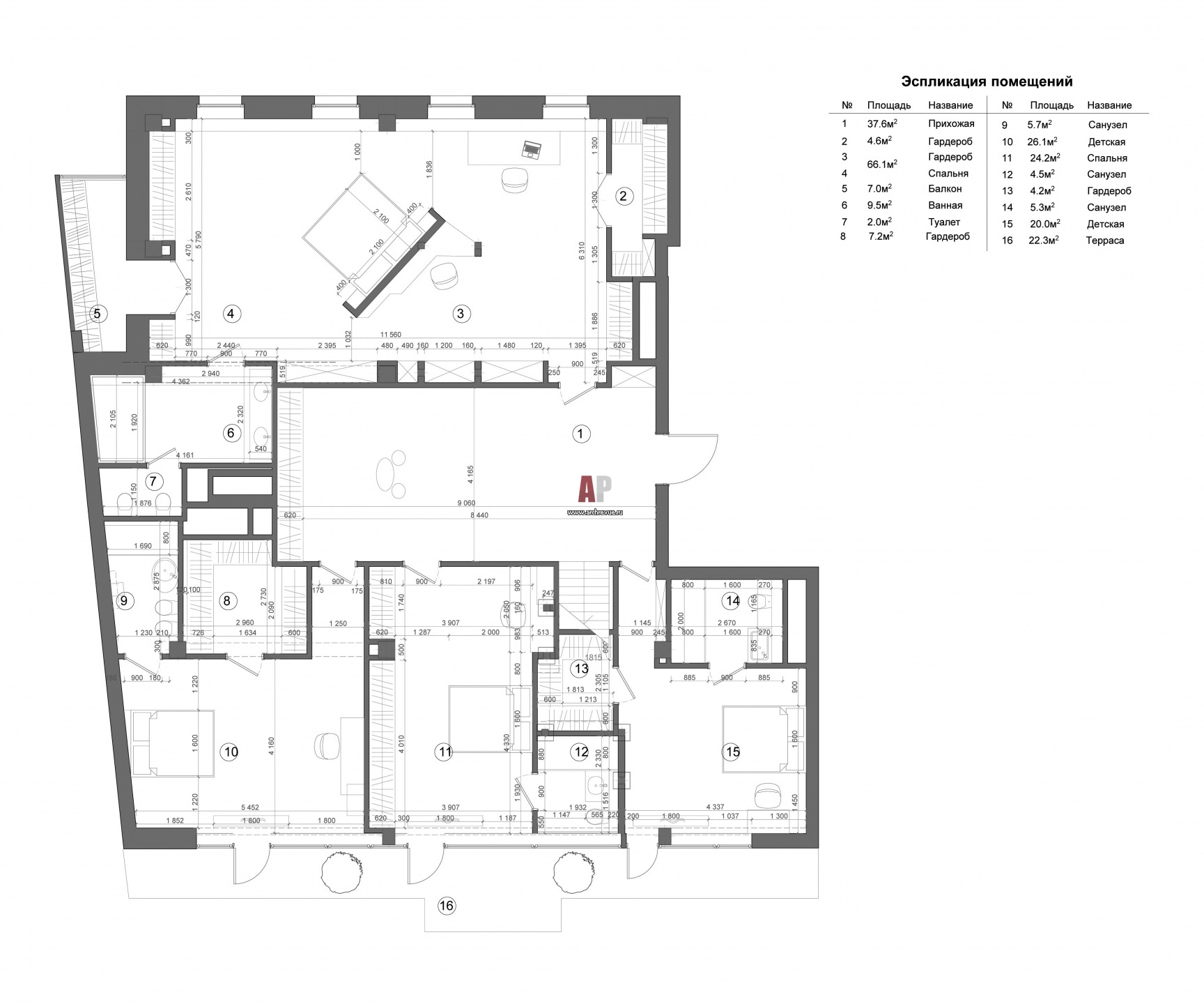
Планировка 1 этажа 2-х этажного пентхауса с открытой террасой в центре Москвы.

План первого этажа современного двухэтажного пентхауса. Общая площадь – 300 кв. м.

Проект: Двухэтажный пентхаус в стиле минимализм
Автор проекта: Голубев Николай
Объект: Пентхаус на Новом Арбате
Общая площадь: 300 кв.м.