Закрыть галерею
Изображение 26 из 29

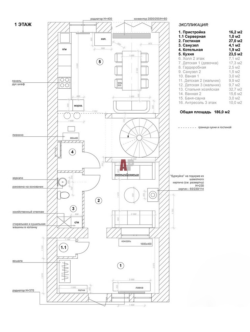
Планировка 1 этажа 3-х этажного танухауса для большой семьи.

План первого этажа типового трехэтажного таунхауса в Подмосковье. Общая площадь – 186 кв. м.

Проект: Трехэтажный таунхаус с винтовой лестницей, антресолью и шведским дизайном
Автор проекта: Бдайциева Ирина
Объект: Таунхаус в скандинавском стиле
Общая площадь: 186 кв.м.