Закрыть галерею
Изображение 24 из 25

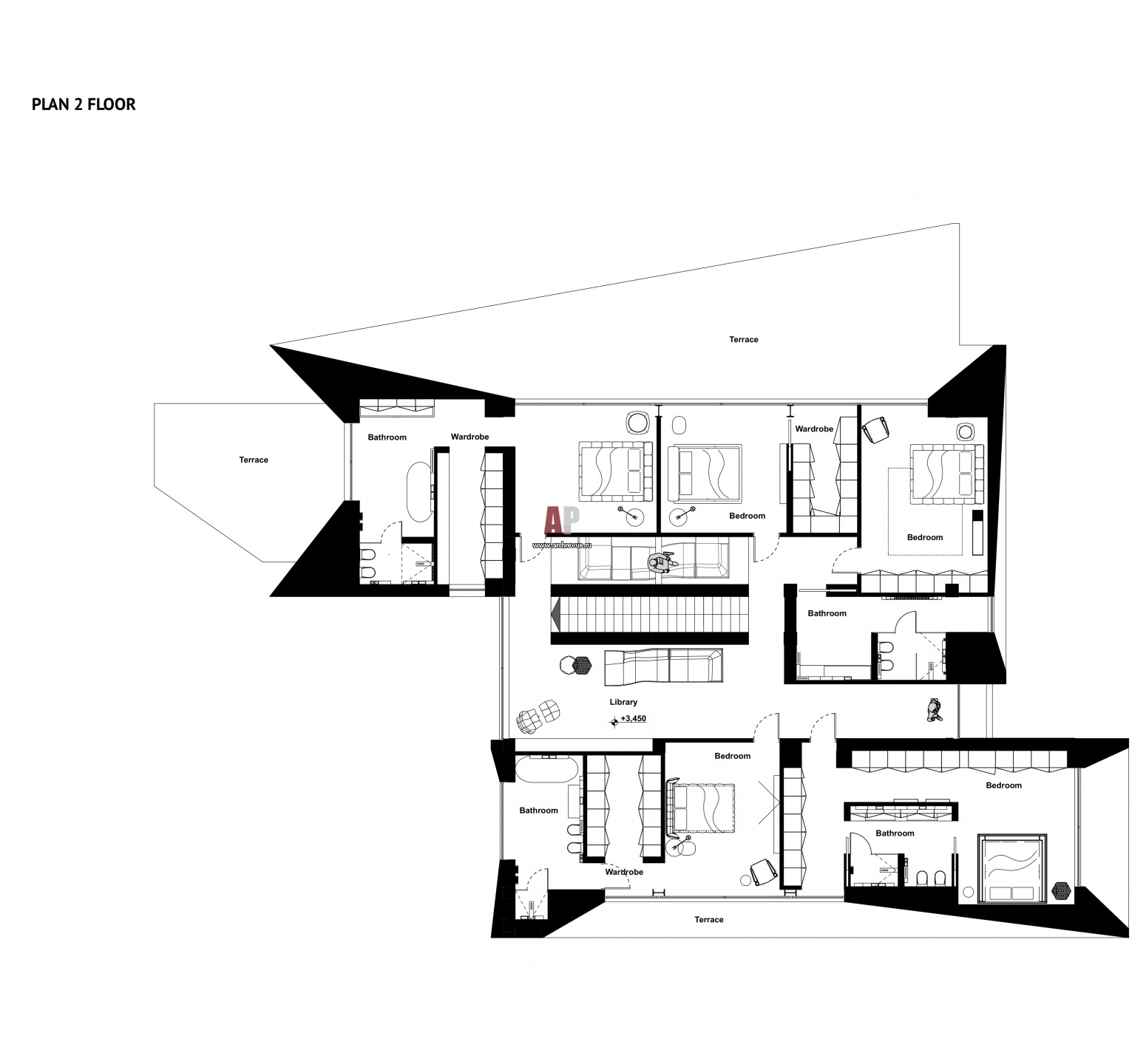
Планировка 2 этажа 3-х этажного дома с авторской архитектурой под Кишиневом.

План второго этажа трехэтажного дома с концептуальной архитектурой. Общая площадь – 780 кв. м.

Проект: Жилой дом с галерей современного искусства
Автор проекта: Петров Дмитрий
Объект: Концептуальный дом на холме
Общая площадь: 780 кв.м.