Закрыть галерею
Изображение 29 из 31

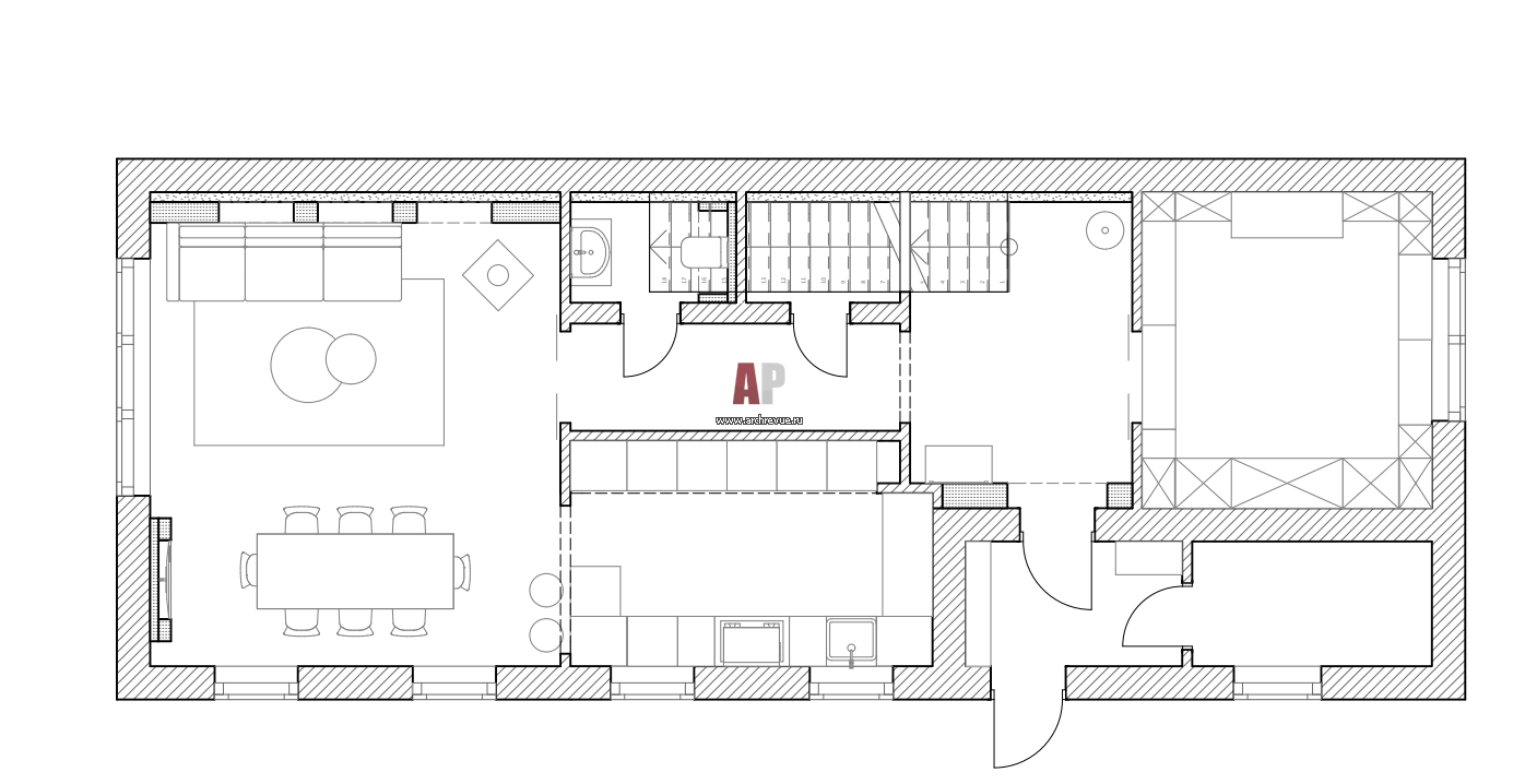
Планировка 1 этажа небольшого загородного дуплекса.

План первого этажа трехэтажного маленького дома для молодой семьи. Площадь – 250 кв. м.

Проект: Трехэтажный дом с мансардой и необычной цветовой палитрой в оттенках розового, бежевого и голубого
Автор проекта: Арапова Кристина
Объект: Дизайнерский дуплекс для молодой семьи
Общая площадь: 250 кв.м.