Закрыть галерею
Изображение 18 из 18

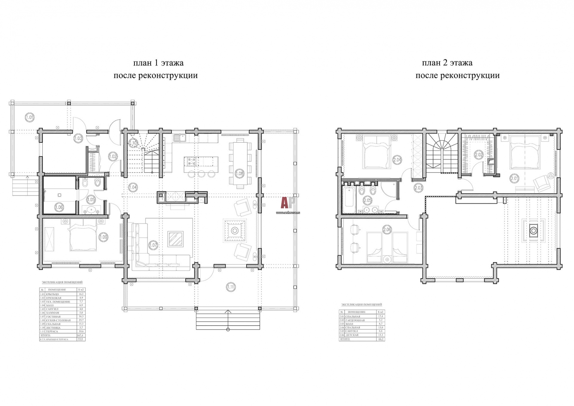
Планировка 1 и 2 этажей деревянного дома после реконструкции. Общая площадь - 234 кв. м. после рекнострукции

План 1 и 2 этажа 2-х тажного деревянного дома 234 кв. м в стиле шале после реконструкции.

Проект: Альпийское шале под Санкт-Петербургом
Автор проекта: Беляевская Анна, Сморгонская Наталия
Объект: Современное альпийское шале
Общая площадь: 234 кв.м.