Закрыть галерею
Изображение 40 из 41

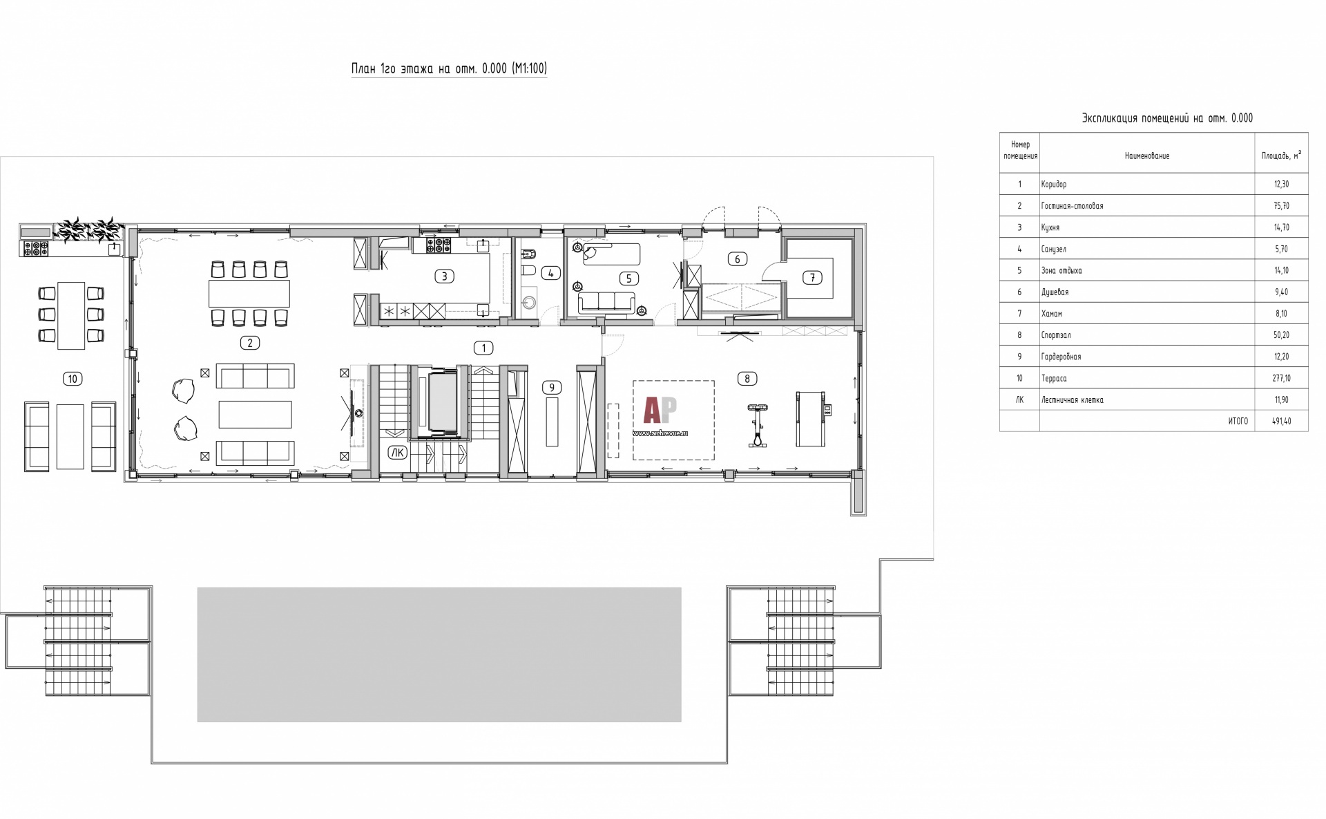
Планировка 1 этажа 2-х этажной виллы в Сочи на крутом склоне.

План первого этажа двухэтажного современного дома на Черном море. Общая площадь – 700 кв. м.

Проект: Двухэтажный загородный дом в Дагомысе с элементами лофта и минимализма
Автор проекта: Паунич Елена
Соавтор(ы): Палкина Екатерина
Объект: Современная вилла в Сочи
Общая площадь: 700 кв.м.