Закрыть галерею
Изображение 24 из 26

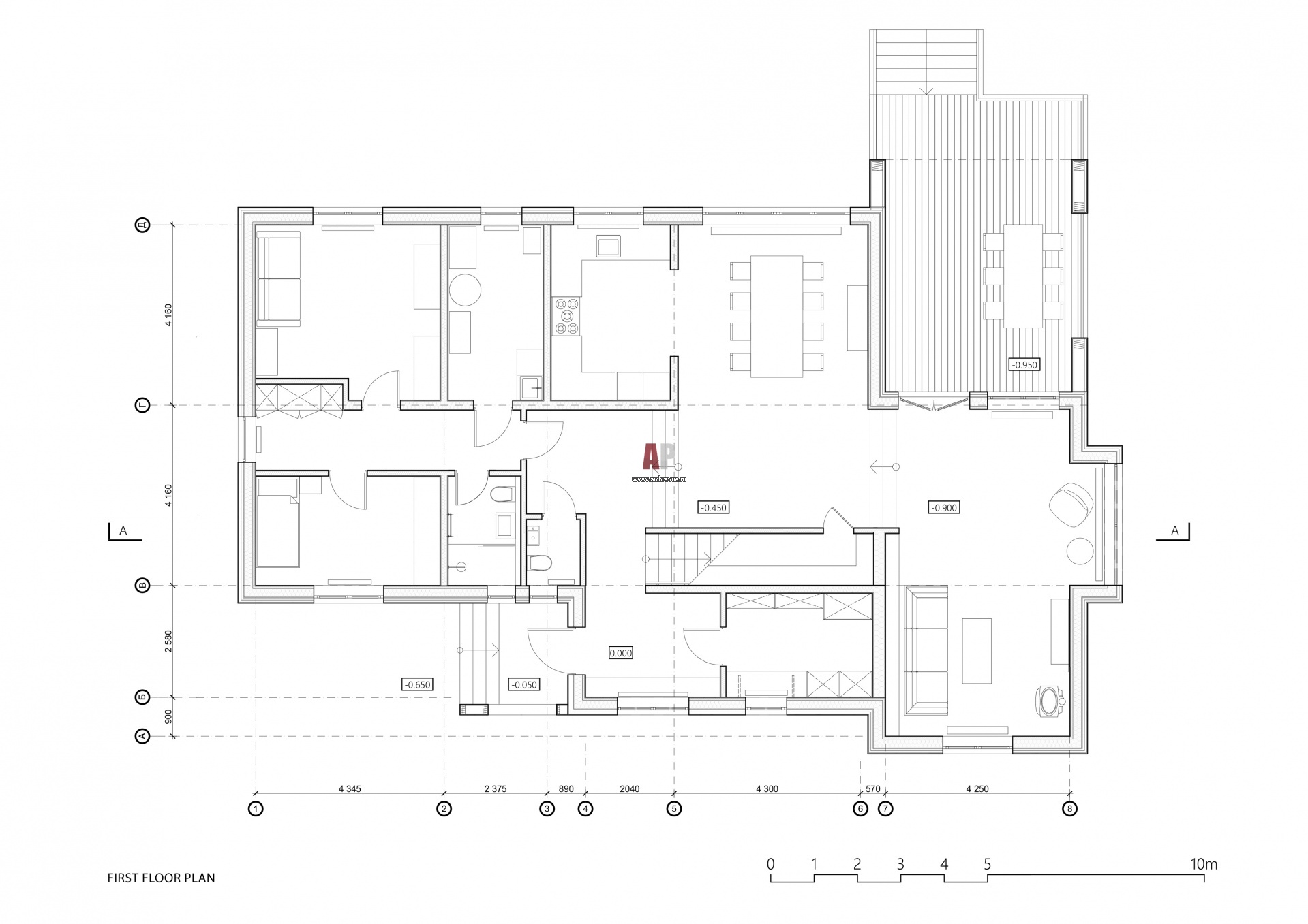
Планировка 1 этажа 2-х этажного каркасного дома из клееного бруса по индивидуальному проекту.

План первого этажа двухэтажной деревянной дачи вблизи Тарусы. Общая площадь – 350 кв. м.

Проект: Двухэтажная дача на берегу Оки для творческой семьи
Автор проекта: Дунаев Алексей, Запольская Марианна
Объект: Деревянный дом под Тарусой
Общая площадь: 350 кв.м.