Закрыть галерею
Изображение 21 из 21

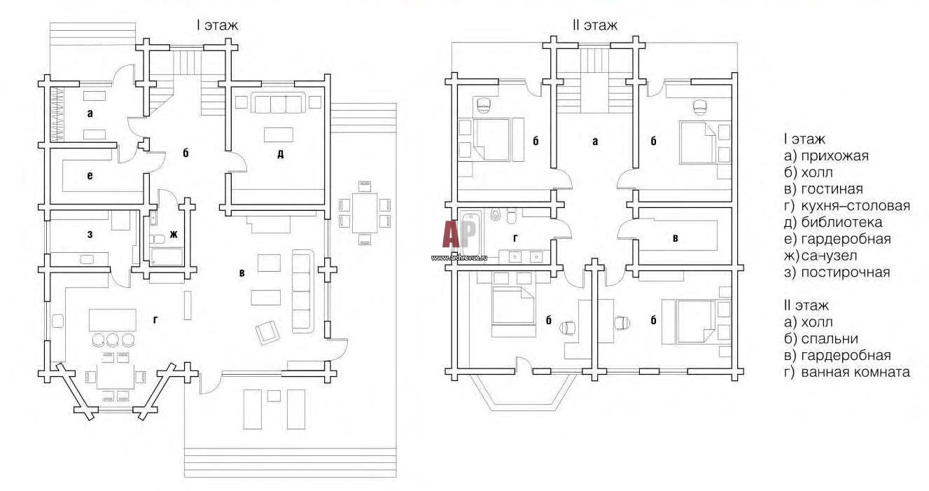
Поэтажный план небольшого двухэтажного деревянного дома в Подмосковье. Общая площадь: 250 кв. м.

Поэтажный план небольшого двухэтажного деревянного дома в Подмосковье. Общая площадь: 250 кв. м.

Проект: Деревянный дом в современном стиле
Автор проекта: Синчугова Антонина
Объект: Дом под соснами
Общая площадь: 250 кв.м.