Закрыть галерею
Изображение 18 из 18

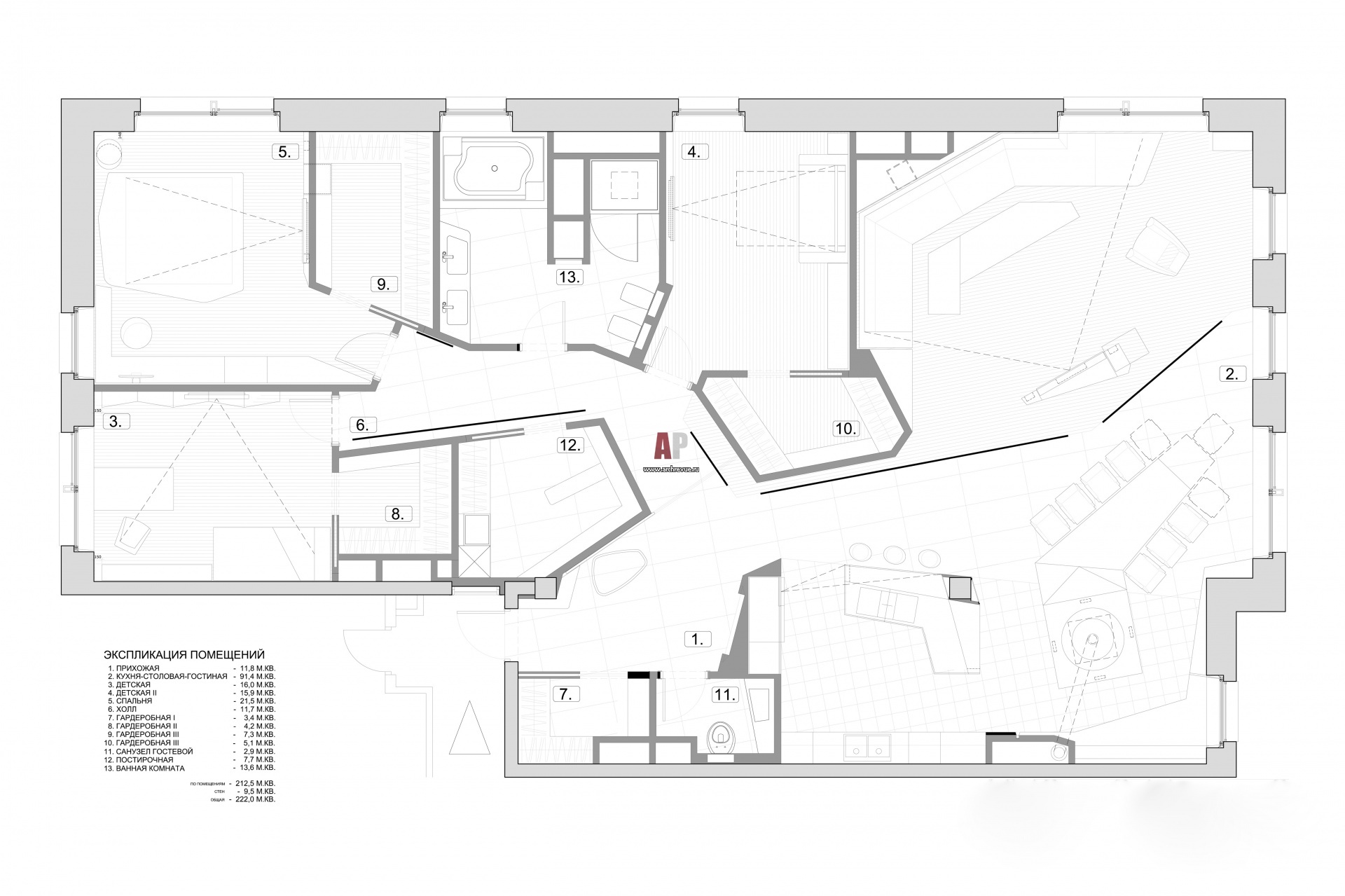
Планировка четырехкомнатной квартиры для большой семьи.

План семейной 4-х комнатной квартиры в стиле деконструктивизм. Общая площадь - 220 кв. м.

Проект: Дизайнерская квартира с нестандартными решениями и мебелью
Автор проекта: Кручинин Кирилл
Объект: Квартира в стиле деконструктивизм
Общая площадь: 220 кв.м.