Закрыть галерею
Изображение 25 из 26

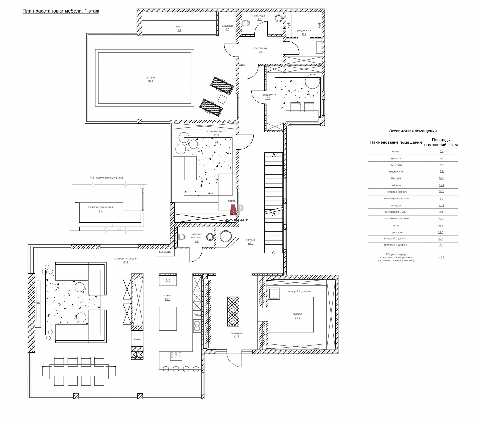
Планировка 1 этажа 2-х этажного дома с современной архитектурой.

План первого этажа двухэтажного дома для большой семьи. Общая площадь – 700 кв. м.

Проект: Интерьер двухэтажного дома для большой семьи в Алма-Ате
Автор проекта: Малова Наталия, Беспаева Диана, Прибылова Алина
Объект: Дом с современной архитектурой и восточным декором
Общая площадь: 700 кв.м.