Закрыть галерею
Изображение 23 из 23

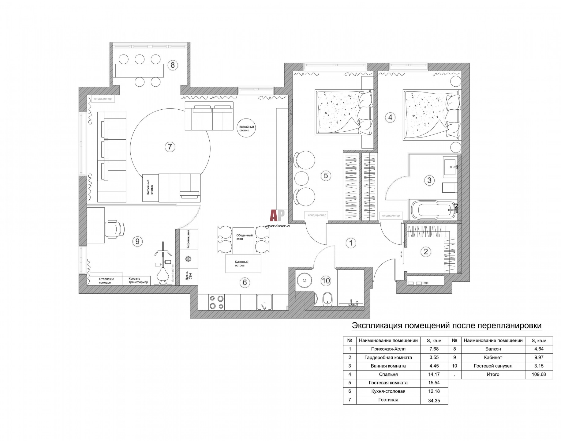
Планировка 3-х комнатной мужской квартиры для временного проживания.

План трехкомнатной квартиры в клубном доме на Басманной. Общая площадь – 115 кв. м.

Проект: Интерьер трехкомнатной квартиры с прозрачными перегородками и видовой площадкой в гостиной
Автор проекта: Константинов Максим, Константинова Евгения
Объект: Мужская квартира с урбанистическим дизайном
Общая площадь: 115 кв.м.