Закрыть галерею
Изображение 20 из 20

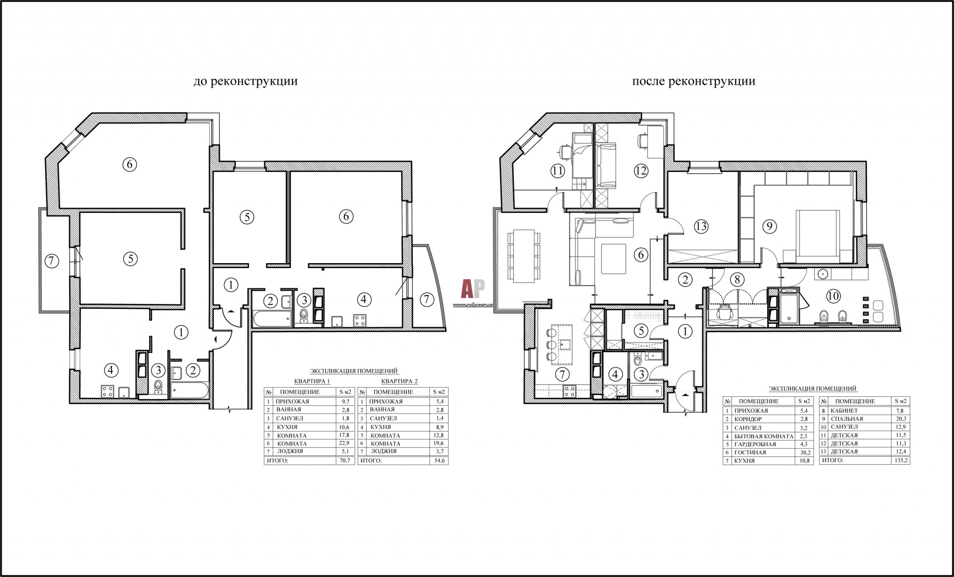
Планировка большой семейной квартиры площадью 135 кв. м до и после реконструкции.

План объединения двух квартир 70, 7 и 54, 6 кв. м до и после реконструкции.

Проект: Квартира с венецианскими мотивами и элементами стиля гламур
Автор проекта: Беляевская Анна, Сморгонская Наталия
Объект: Квартира с фотопанно в Санкт-Петербурге
Общая площадь: 135 кв.м.