Закрыть галерею
Изображение 22 из 22

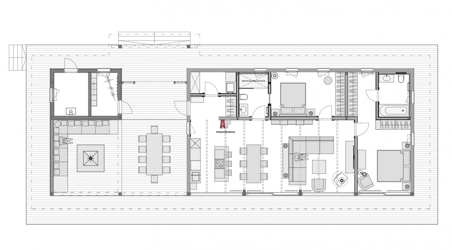
План одноэтажного деревянного дома с верандой по индивидуальному проекту. Общая площадь – 270 кв. м.

Планировка небольшого 1-этажного дома из безусадочного бруса. 

Проект: Небольшой одноэтажный деревянный дом с мужским характером
Автор проекта: Пенние Марина
Соавтор(ы): Воронов Роман
Объект: Деревянный дом с террасой и открытой жаровней
Общая площадь: 270 кв.м.