Закрыть галерею
Изображение 41 из 42

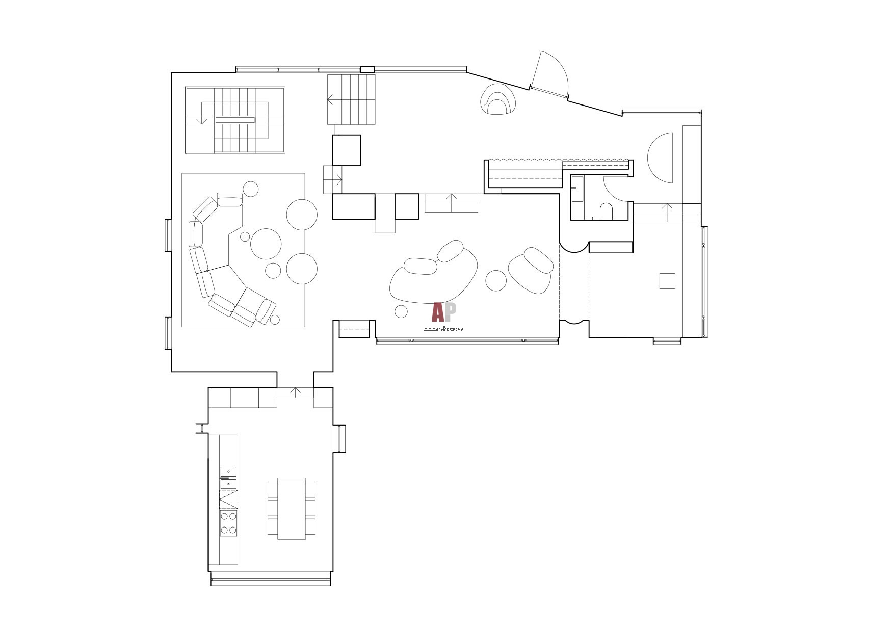
План первого этажа бетонного дома в Подмосковье. Общая площадь - 420 кв. м.

Планировка 1 этажа современного 3-х этажного дома. 

Проект: Артистичный бетонный интерьер трехэтажного дома в современном стиле
Автор проекта: Колчин Сергей
Объект: Бетонный дом в Подмосковье
Общая площадь: 420 кв.м.