Закрыть галерею
Изображение 29 из 30

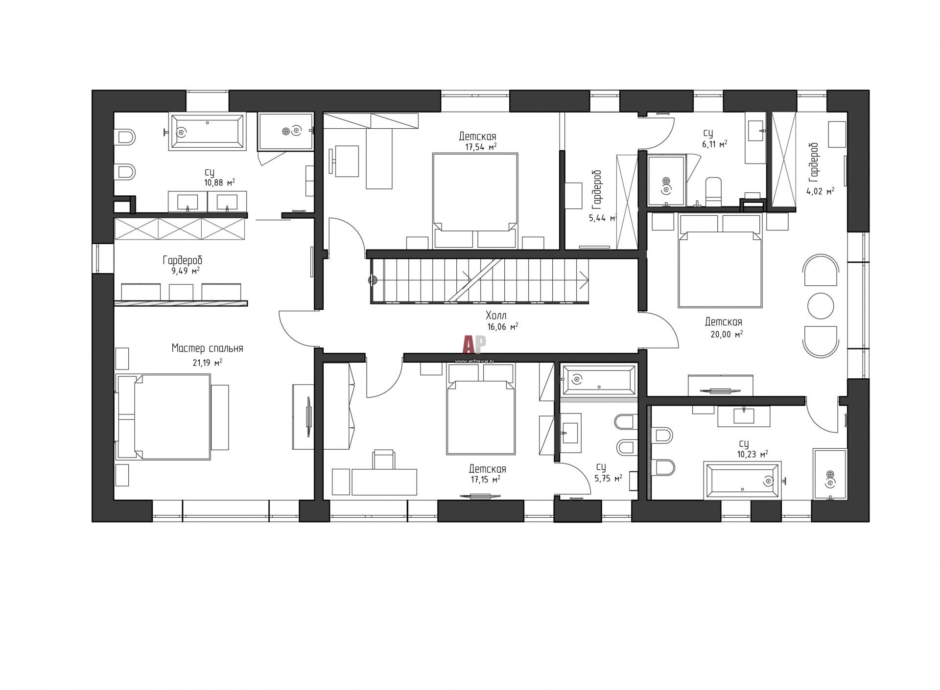
Планировка 2 этажа 2-х этажного дома с современной архитектурой.

План второго этажа дома 300 кв. м с террасой и СПА-комплексом, коттеджный поселок «Успенские Дачи» AVA Villa.

Проект: Дом с верандой и SPA-комплексом на Рублево-Успенском шоссе за 12 месяцев. Архитектура и интерьеры
Автор проекта: Андреева Елена
Соавтор(ы): Каубрите Кристина
Объект: Черный дом в сосновом лесу
Общая площадь: 300 кв.м.