Закрыть галерею
Изображение 28 из 28

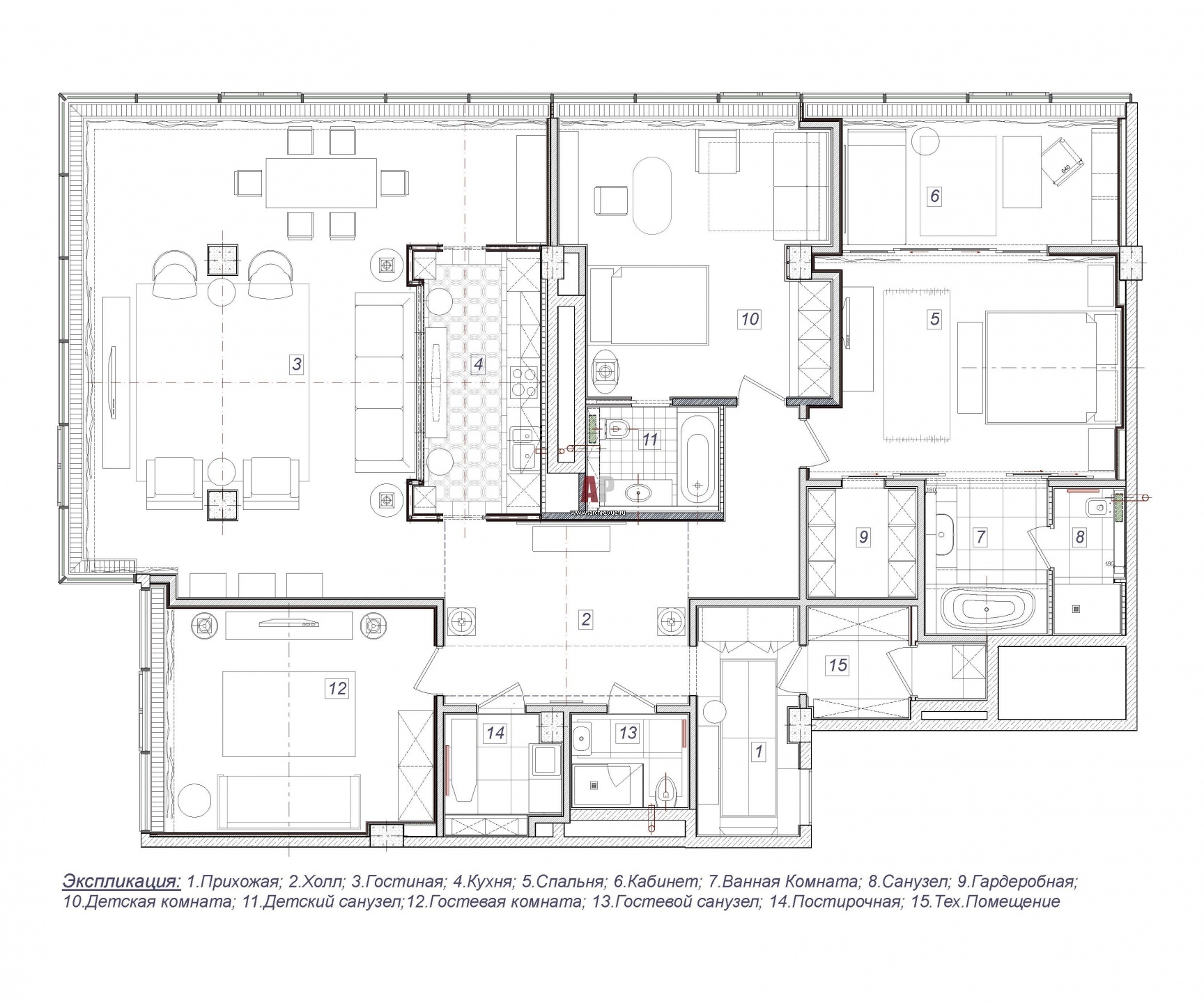
Планировка 4-х комнатного семейного пентахуса в ЖК «Легенда Цветного».

План семейной квартиры с панорамным угловым остеклением. Общая площадь – 209 кв. м.

Проект: Панорамная квартира с ярким декором на Цветном бульваре
Автор проекта: Садкова Ксения
Объект: Статусный интерьер по мотивам ар-деко
Общая площадь: 209 кв.м.