Закрыть галерею
Не удалось загрузить картинку
Изображение
19
из
19
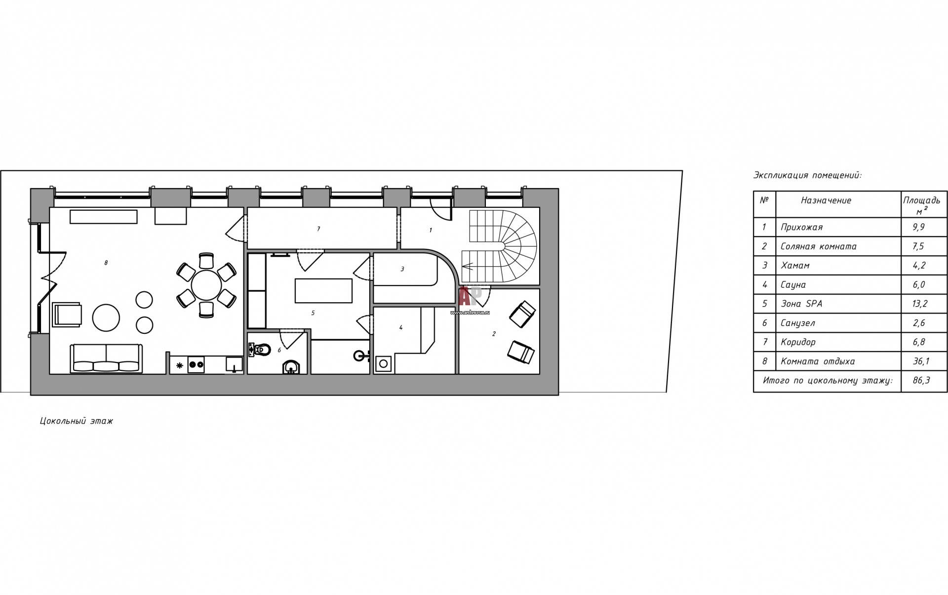
Планировка цокольного этажа 2-х этажного дома с эксплуатируемым цоколем площадью 600 кв. м.
План цокольного этажа современного дома с панорамными окнами. Общая площадь – 600 кв. м.
Проект:
Современный дом в серо-голубой гамме
Автор проекта:
Нагаева Алена
,
Минчева Елена
Объект:
Дом на холме
Общая площадь:
600 кв.м.
ё
1
2
3
4
5
6
7
8
9
0
-
=
й
ц
у
к
е
н
г
ш
щ
з
х
ъ
\
ф
ы
в
а
п
р
о
л
д
ж
э
я
ч
с
м
и
т
ь
б
ю
.