Закрыть галерею
Изображение 36 из 36

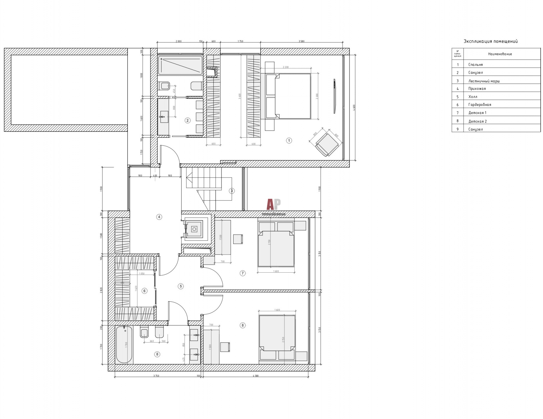
План 3 этажа 3-х этажной современной виллы на Средиземном море.

Планировка третьего этажа трехэтажного дома в Испании. Общая площадь – 440 кв. м.

Проект: Вилла с каскадной архитектурой и двухуровневым бассейном на берегу
Автор проекта: Пашнина Василина, Кисенко Михаил
Соавтор(ы): Васильев Семен
Объект: Современная вилла в Испании
Общая площадь: 440 кв.м.