Закрыть галерею
Изображение 18 из 19

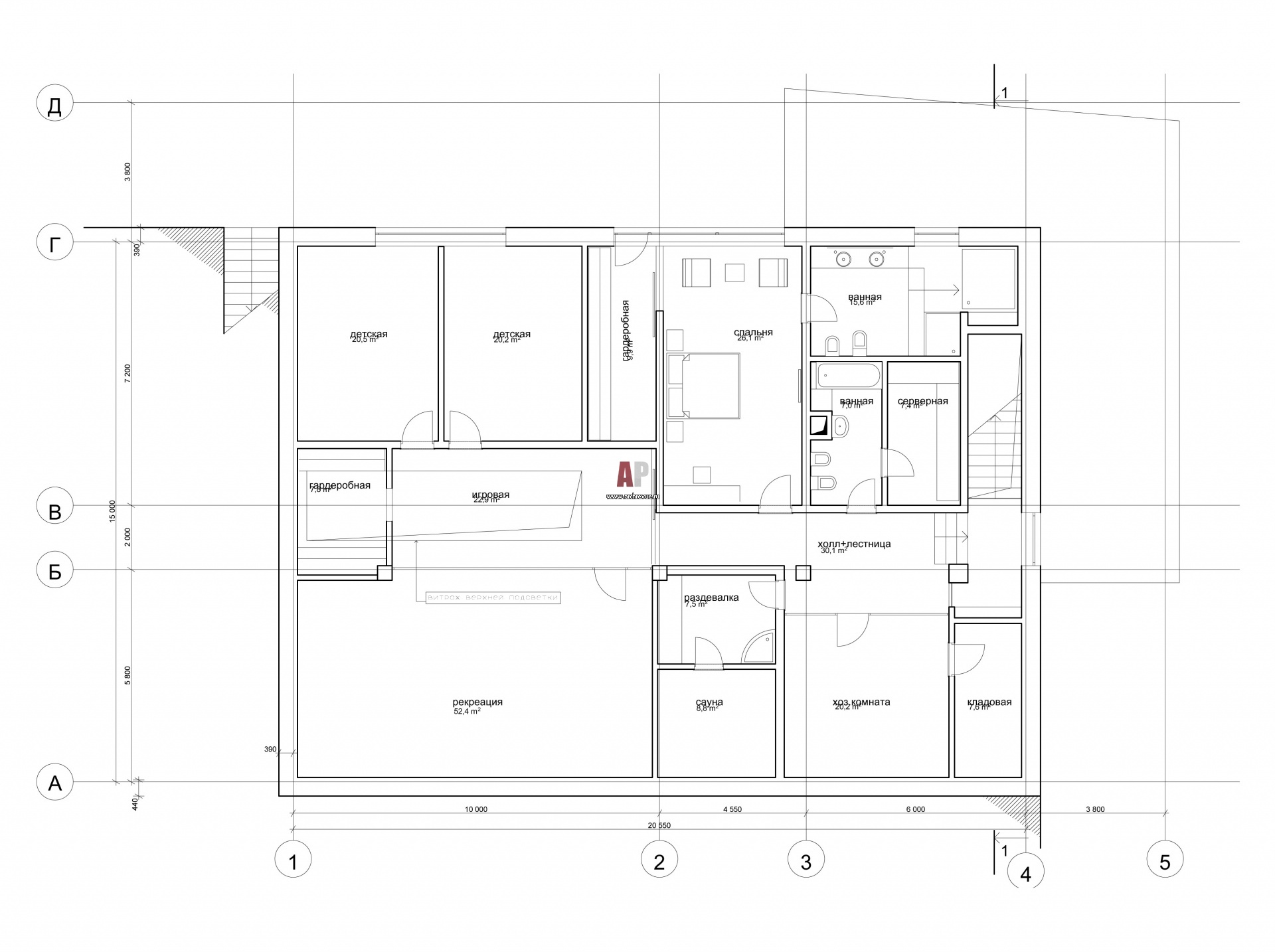
Планировка 1 этажа 2-х этажного дома. Приватный этаж расположен на нижнем уровне.

План первого этажа двухэтажного дома с холме. Общая площадь - 450, 3 кв. м.

Проект: Дом в минимализме
Автор проекта: Борисенко Арсений, Зайцев Петр
Объект: Дом в горе для молодой семьи
Общая площадь: 450,3 кв.м.